Expert Support
Full Speed
100% Working
Atlas Copco Minetruck MT431B Diagram and Drawing 8997462300 EN
20 USD
- Description
Description
Contents:
Electric Diagram
Pressurizer Inst
Pressurizer Wiring
Control Box
Harness – C4
Light Inst-Brake/Tail
Harness Pressure Switch
Elect Shift,Fs
Harness C2
Harness
Cab Heater
Panel
Amber Strobe Light
Reverse Alarm
Light Inst 4f/4r
Switch Panel
Speedometer Inst Fs Cab Panel
Elec Shift Box With Lockup
Electric Shift
Harness C1
Harness C3
Operator Panel Lu/Retarder
Panel
Electric System
Fire Protection Diagram
Fire Suppression System
Hydraulic Diagram
Fuel System
Trans/Convs60431-36b
Sahr Brake
Steering System
Chart-Brake Cooling-Sahr,S60
Plmg-Dump System
Transmission – Clark 6422
Sahr Brake
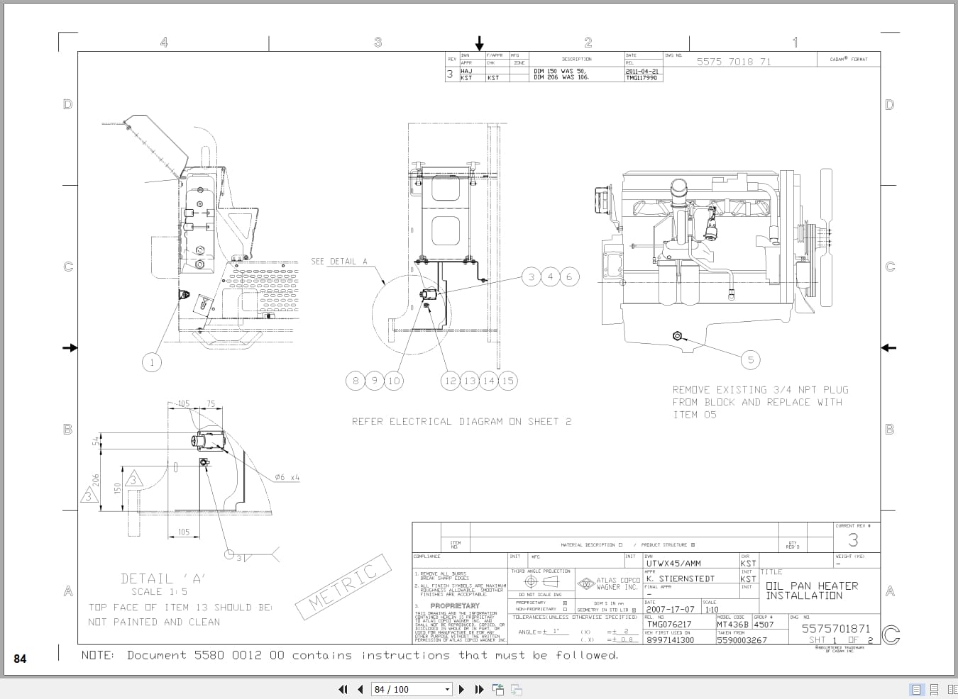
Inst-Oil Pan Heater
Dump System
Lubrication Diagram
Lincoln Lube24vtimer
Overview: Dimension Drawing
Swivel Inst
Specification
Lifting Instruction












