Expert Support
Full Speed
100% Working
Bobcat Compact Excavator E45 Service Manual 6989437 2020
Original price was: 50.30Current price is: 30. USD
- Description
Description
Bobcat Compact Excavator E45 Service Manual 6989437 2020
Bobcat Compact Excavator E45 Service Manual 6989437 2020
Size: 36.7 MB
Format: PDF
Language: English
Brand: Bobcat
Type of Machine: Compact Excavator
Type of Manual: Service Manual
Model: E45 Compact Excavator
Part Number: 6989437
Series Number:
S/N AG3G11001 & Above
S/N AHHC11001 & Above
S/N B3NM11001 & Above
S/N B3NR11001 & Above
Date: 2020
Number Of Page: 1101 Pages
Content:
FOREWORD
SAFETY AND MAINTENANCE
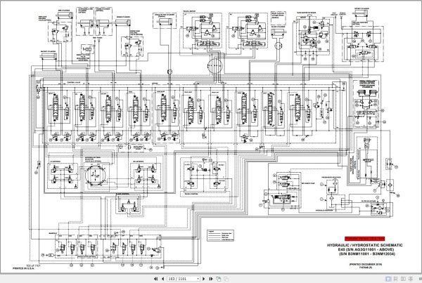
HYDRAULIC SYSTEM
UNDERCARRIAGE
UPPERSTRUCTURE AND SWING SECTION
ELECTRICAL SYSTEM AND ANALYSIS
ENGINE SERVICE
HEATING, VENTILATION AND AIR CONDITIONING S/N AG3G11001 – AG3G13999 AND AHHC11001 – AHHC12999
HEATING, VENTILATION AND AIR CONDITIONING S/N AG3G14000 & ABOVE, AHHC13000 & ABOVE, B3NM11001 & ABOVE AND B3NR11001 & ABOVE
SPECIFICATIONS
ALPHABETICAL INDEX












