✓
Expert Support
✓
Full Speed
✓
100% Working
Case Excavator CX31B CX36B Service Manual S5PW0032E02
Size: 104.46 MB
Format: PDF
Language: English
Brand: Case
Type of Machine: Excavator
Type of Manual: Service Manual, Electrical Schematic, Hydraulic Schematic
Model: Case CX31B, CX36B Excavator
Part Number: S5PW0032E02
Number of Pages: 949 Pages
30 USD
- Description
Description
Contents:
General Safety Information
1. Outline
2. Specifications
3. Attachment Dimensions
11. Tools
12. Standard Maintenance Time
Table
13. Maintenance Standard And
Test Procedure
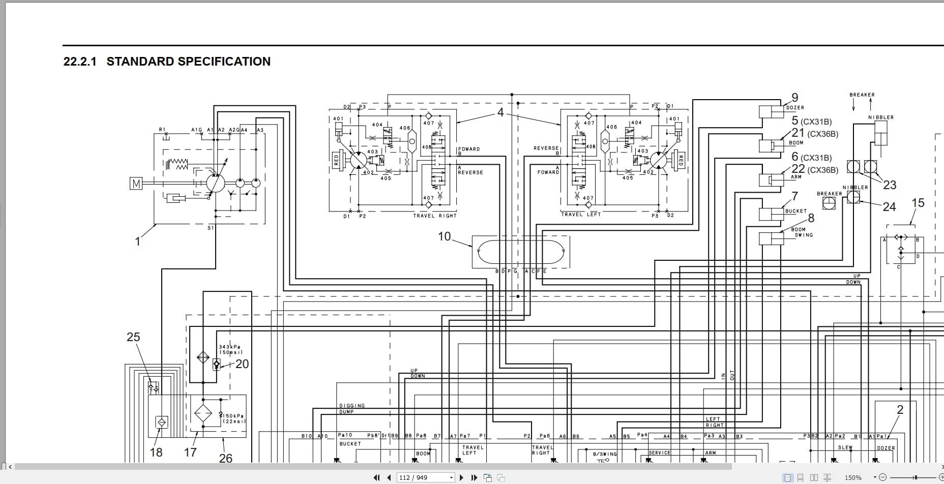
22. Hydraulic System
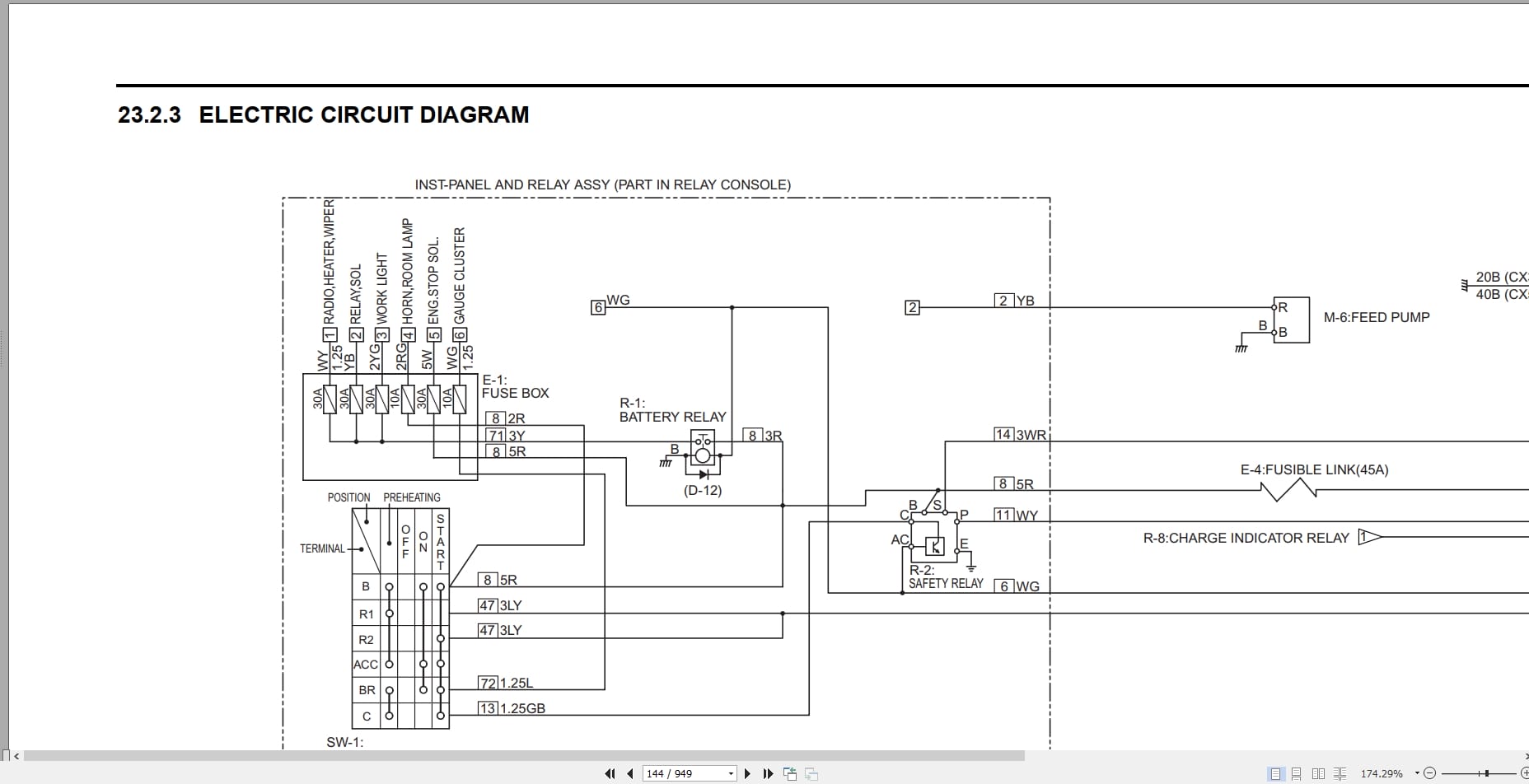
23. Electrical System
24. Components System
31. General Disassembly And
Assembly
32. Attachments
33. Upper Slewing Structure
34. Travel System
42. Troubleshooting
(Hydraulic System)
43. Troubleshooting
(Electrical System)
44. Troubleshooting (Engine)
51. Engine













