Expert Support
Full Speed
100% Working
CAT Hydraulic Power Unit HPU300 Electric Schematics EN PDF
Original price was: 20.10Current price is: 10. USD
- Description
Description
CAT Hydraulic Power Unit HPU300 Electric Schematics EN PDF
Size: 325KB (PDF Files)
Language: English
Format: PDF
Brand: CAT
Types of Vehicle: Hydraulic Power Unit
Types of Manuals: Electric Hydraulic Schematics
Quantity of CD: 1 DVD
OS: All Window
High-Speed link Download
***Electric Schematic:
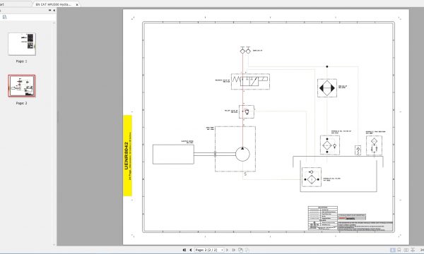
EN CAT HPU300 Hydraulic Power Unit Hydraulic System (UENR8042) Hydraulic Schematic PDF
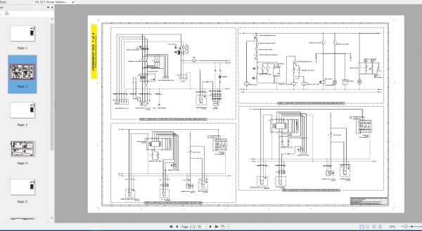
EN CAT Power Systems HPU300 Hydraulic Power Unit Electrical System (UENR8043) Electric Schematic PDF
***DETAIL CONTENTS:
HPU300 Hydraulic Power Unit Hydraulic System
…TION CODES CURRENT STANDARD PREVIOUS STANDARD ELECTRICAL SCHEMATIC EXAMPLE HYDRAULIC SCHEMATIC EXAMPLE 325-PK WIRE COLOR CIR…
Schematic – HPU300 Hydraulic Power Unit Hydraulic System (UENR8042-00)
2017/02/23
HPU300 Hydraulic Power Unit Electrical System
…symbols Symbols and Definitions Harness And Wire Electrical Schematic Symbols Fuse: A component in an electrical circuit that w…
Schematic – HPU300 Hydraulic Power Unit Electrical System (UENR8043-00)
2017/02/23

















