Expert Support
Full Speed
100% Working
Caterpillar Wheel Tractor Scraper 613C 92X Operators Service Manual Schematics
50 USD
- Description
Description
List of Files:
-Disassembly Assembly
RENR1252 26SI Series Alternator.pdf
SENR2082 N3 Series Brushless Alternators.pdf
SENR2765 3208 Vehicular Engine for 613C Wheel Tractor.pdf
SENR2769 613C Wheel Tractor-Scraper Power Train.pdf
SENR2776 613C Wheel Tractor-Scraper Vehicle Systems.pdf
SENR3334 Air Conditioning Heating R-12.pdf
SENR4130 HDB Series M1 Series Heavy Duty Brushless Alternators.pdf
SENR4978 Delco Remy 20-SI Series Alternator.pdf
SENR7136 Coach Car Airdraulic Seat System.pdf
UENR3262 Seal Installation.pdf
-General Service Information
REG00914 Air Compressors TU-FLO 300 400 500 600 700 1000.pdf
SELD0080 Cylinder Packs Con Rods Piston Packs.pdf
SELD0083 Engines.pdf
SELD0179 3500 Engines Short Blocks.pdf
SELD0188 3204 Long Blocks Reman Technical Supplement.pdf
SELD0189 3304 3306 Long Blocks.pdf
SELD0190 3406 C-15 Long Blocks.pdf
SELD0191 3408 3412 Long Blocks.pdf
SELD0196 3116 Long Blocks.pdf
SELD0205 Selection Flowchart for Engines etc.pdf
SELD0249 3208 Long Blocks.pdf
SELD0250 3126 C7 Long Blocks.pdf
SELD0267 C-10 C-12 Long Blocks.pdf
SELD0276 Short Blocks.pdf
SELD0301 3046 3066 Long Blocks.pdf
SENR0512 Service Welding Guide.pdf
SENR7474 Air Dryer for Vehicle Air Systems.pdf
SENR7510 Delco Remy Cranking Motors 30-MT 35-MT 40-MT 50-MT Series.pdf
-Operators Maintenance Manual
SEBU5596 Product Identification Numbers (PIN) Location Guide.pdf
SEBU5908 613C Elevating Wheel Tractor-Scraper.pdf
SEBU6250 Caterpillar Machine Fluids Recommendations.pdf
SEBU7373 Product Link 101.pdf
SEBU8142 Product Link 121SR 321SR 420 421 522 523.pdf
SEBU8257 European Union Physical Agents (Vibration) Directive.pdf
SEBU9208 Caterpillar Filters Recommendations.pdf
-Safety
SENR7733 General Service Repair Safety Info.pdf
-Schematics
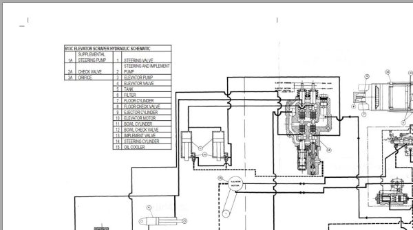
SENR2778 613C Wheel Tractor-Scraper Hydraulic System.pdf
SENR2786 613C Wheel Tractor-Scraper Electrical System (For Serial Numbers 92X1-1881).pdf
SENR3981 Fluid Power Electrical Graphic Symbols.pdf
UENR5396 613C Wheel Tractor-Scraper Electrical System 3T-5174-06 (For Serial Numbers 92X1882-UP).pdf
-Specifications
RENR1252 26SI Series Alternator.pdf
SENR2082 N3 Series Brushless Alternators.pdf
SENR2763 3208 Vehicular Engine.pdf
SENR2766 613C Wheel Tractor Power Train.pdf
SENR2770 613C Wheel Tractor-Scraper Steering Systems.pdf
SENR2772 613C Wheel Tractor-Scraper Air System Brakes.pdf
SENR2774 613C Wheel Scraper Hydraulic System.pdf
SENR3334 Air Conditioning Heating R-12.pdf
SENR4130 HDB Series M1 Series Heavy Duty Brushless Alternators.pdf
SENR4978 Delco Remy 20-SI Series Alternator.pdf
-System Operators
KENR6303 Equip Manager User Guide.pdf
KENR6304 Equip Manager Dealer Administrator Manual.pdf
RENR1252 26SI Series Alternator.pdf
RENR7911 Product Link 121S 300.pdf
RENR8143 Product Link PL522 523.pdf
SENR2082 N3 Series Brushless Alternators.pdf
SENR2764 3208 Vehicular Engine.pdf
SENR2767 613C Wheel Tractor Power Train.pdf
SENR2771 613C Wheel Tractor-Scraper Steering Systems.pdf
SENR2773 613C Wheel Tractor-Scraper Air System Brakes.pdf
SENR2775 613C Wheel Scraper Hydraulic System.pdf
SENR2947 Starting Charging Systems.pdf
SENR3334 Air Conditioning Heating R-12.pdf
SENR4130 HDB Series M1 Series Heavy Duty Brushless Alternators.pdf
SENR4978 Delco Remy 20-SI Series Alternator.pdf
SENR7136 Coach Car Airdraulic Seat System.pdf
-Systems Operators – Fundamentals
SEGV3008 Electrical System for All Caterpillar Products.pdf
-Testing Adjusting
RENR1252 26SI Series Alternator.pdf
RENR7911 Product Link 121S 300.pdf
RENR8143 Product Link PL522 523.pdf
SENR2082 N3 Series Brushless Alternators.pdf
SENR2764 3208 Vehicular Engine.pdf
SENR2767 613C Wheel Tractor Power Train.pdf
SENR2771 613C Wheel Tractor-Scraper Steering Systems.pdf
SENR2773 613C Wheel Tractor-Scraper Air System Brakes.pdf
SENR2775 613C Wheel Scraper Hydraulic System.pdf
SENR2947 Starting Charging Systems.pdf
SENR3334 Air Conditioning Heating R-12.pdf
SENR4130 HDB Series M1 Series Heavy Duty Brushless Alternators.pdf
SENR4978 Delco Remy 20-SI Series Alternator.pdf
SENR7136 Coach Car Airdraulic Seat System.pdf
-Torque Specifications
SENR3130 Torque Specifications.pdf
-Troubleshooting
RENR7911 Product Link 121S 300.pdf
RENR8143 Product Link PL522 523.pdf
SENR2082 N3 Series Brushless Alternators.pdf
SENR4130 HDB Series M1 Series Heavy Duty Brushless Alternators.pdf



















