-50%
✓
Expert Support
✓
Full Speed
✓
100% Working
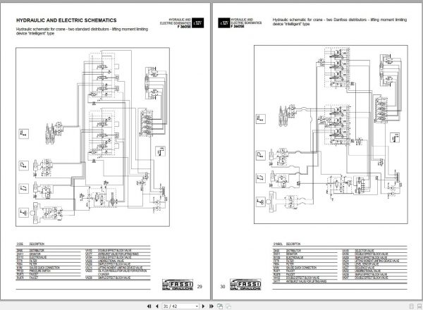
Fassi Cranes F360SE.24 Use and Maintenance Manual 2004
Fassi Cranes F360SE.24 Use and Maintenance Manual 2004
Size: 624 KB
Format: PDF
Language: English
Brand: Fassi
Type of Machine: Cranes
Type of document: Use and Maintenance Manual
Model: Fassi F360SE.24 Cranes
Date: 25/08/2004
Number of Pages: 42 Pages
Original price was: 20.10Current price is: 10. USD
- Description
Description
Fassi Cranes F360SE.24 Use and Maintenance Manual 2004
Size: 624 KB
Format: PDF
Language: English
Brand: Fassi
Type of Machine: Cranes
Type of document: Use and Maintenance Manual
Model: Fassi F360SE.24 Cranes
Date: 25/08/2004
Number of Pages: 42 Pages













