-40%
✓
Expert Support
✓
Full Speed
✓
100% Working
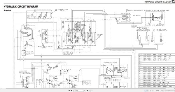
GEHL Compact Track Loader CTL75 Service Manual 917342C
Size: 23.4 MB
Format: PDF
Language: English
Brand: GEHL
Type of Machine: Compact Track Loader
Type of Manual: Service Manual
Model: GEHL CTL75 Compact Track Loader
Form Number: 917342C
Publication Date: 2010
Number of Pages: 343 Pages
Original price was: 50.30Current price is: 30. USD
- Description
Description
Contents:
Safety
Service Data
Function
Disassembly And Assembly
Troubleshooting













