Expert Support
Full Speed
100% Working
Hidromek Loader HMK 102B-S Maestro Workshop Manual Y10_12400 TR
100 USD
- Description
Description
Contents:
00-00 kapak listesi
00-01 tarihçe
00-02 önsöz
00-03 emniyet
00-04 standartlar
01-00 özellikler
01-01 maestro özellikler
01-02 yaÄŸlama tablosu
01-03 verim standartları
10-00 motor
10-01 motor ozellikleri
10-02 motor servis
20-00 elektrik
20-01 elektrik rev01
21-01 klima
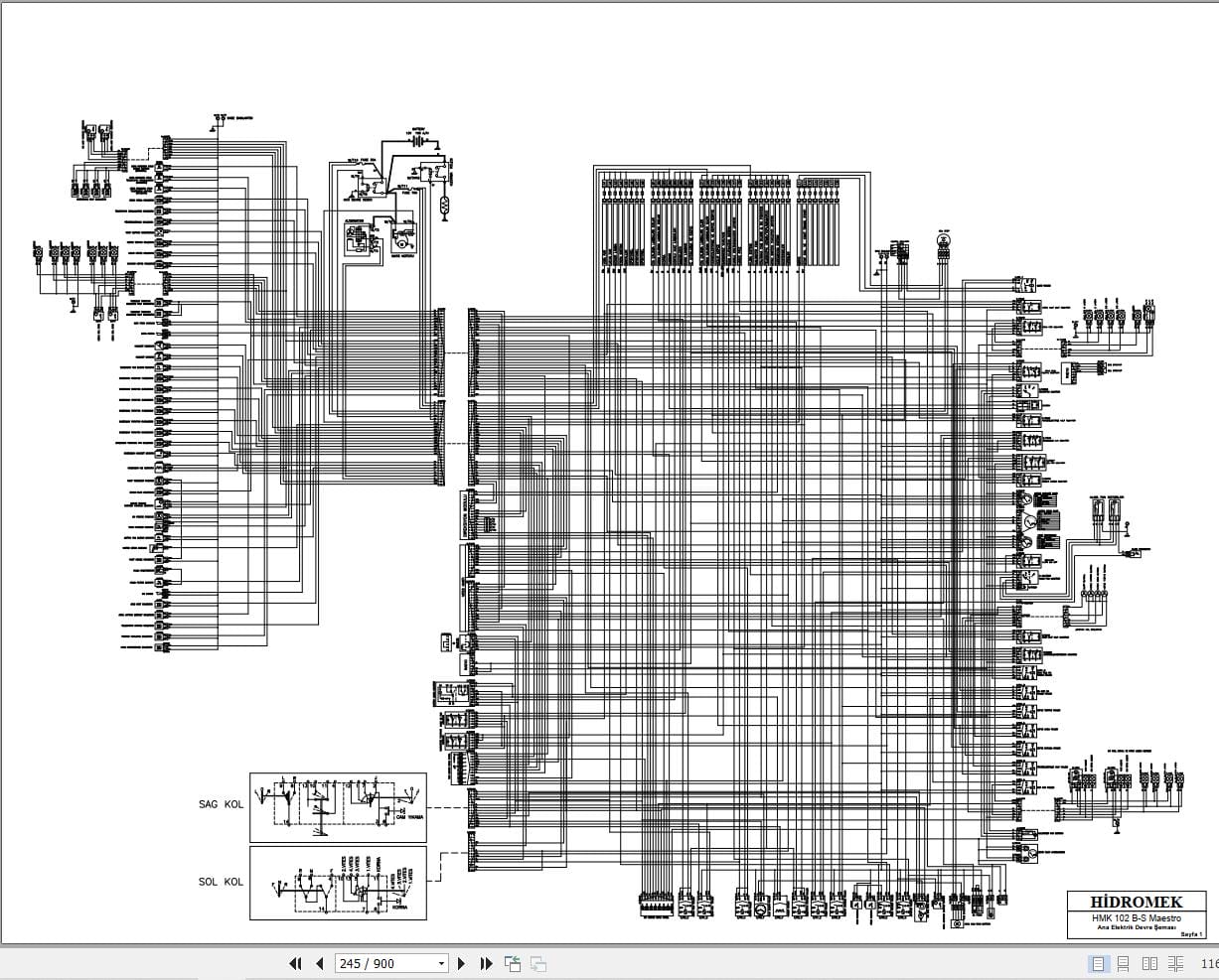
29-01 Elektrik Devre Semalari
29-01_1_A0_TR
29-01_2_A2 – 01853118
29-01_3_A2 – 01853030
30-00 hidrolik
30-01 hidrolik
30-021 hidrolik husco rev01
30-022 hidrolik rexroth rev 01
33-01 hidrolik akümülatör
34-01 silindir rev01
35-01 kawasaki joystick
35-02 rexroth joystick
39-01 Hidrolik Devre Semalari
40-00 ÅŸasi
40-01 ITL PS760 TX calisma
40-02 ITL PS760 servis
41-01 ITL aks
41-02 ITL aks servis bilgileri
42-02 CARRARO şanzıman servis rev01
43-01 CARRARO ön aks
43-02 CARRARO arka aks
44-01 Carlisle Fren sistemi
50-00 lastik
50-01 lastik
60-00 ataÅŸman
60-01 yukleyici ataşmanları
60-02 kazıcı ataşmanları
60-03 diger ataÅŸmanlar
Untitled












