Expert Support
Full Speed
100% Working
Honda Engine GX120 GX160 GX200 Service Information and Maintenance Manual EN
10 USD
- Description
Description
Contents:
A Few Words About Safety
Service Information
For Your Customer’s Safety
For Your Safety
Important Safety Precautions
INTRODUCTION
SAFETY MESSAGES
SERVICE RULES
SYMBOLS
ABBREVIATIONS
1. SPECIFICATIONS
SERIAL NUMBER LOCATION
P.T.O. TYPE VARIATION
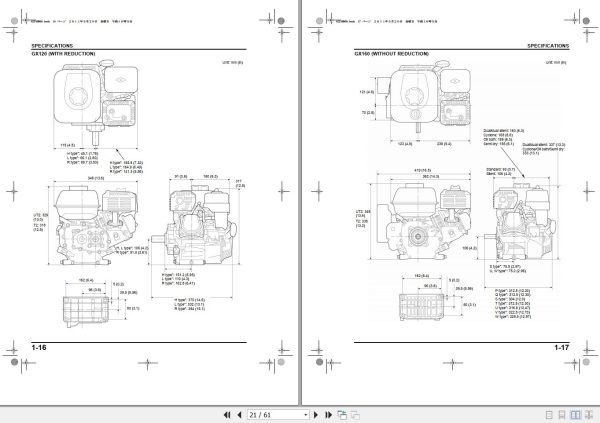
DIMENSIONS AND WEIGHTS SPECIFICATIONS
ENGINE SPECIFICATIONS
PERFORMANCE CURVES
DIMENSIONAL DRAWINGS
P.T.O. DIMENSIONAL DRAWINGS
2. SERVICE INFORMATION
MAINTENANCE STANDARDS
TORQUE VALUES
LUBRICATION & SEAL POINTS
TOOLS
HARNESS AND TUBE ROUTING
3. MAINTENANCE
MAINTENANCE SCHEDULE
ENGINE OIL LEVEL CHECK/CHANGE
REDUCTION CASE OIL LEVEL CHECK/ CHANGE
AIR CLEANER CHECK/CLEANING/ REPLACEMENT
SEDIMENT CUP CLEANING
SPARK PLUG CHECK/ADJUSTMENT
SPARK PLUG REPLACEMENT
SPARK ARRESTER CLEANING
IDLE SPEED CHECK/ADJUSTMENT
VALVE CLEARANCE CHECK/ ADJUSTMENT
COMBUSTION CHAMBER CLEANING
FUEL TANK AND FILTER CLEANING
FUEL TUBE CHECK
4. TROUBLESHOOTING
BEFORE TROUBLESHOOTING
TROUBLESHOOTING
5. COVER
FAN COVER REMOVAL/INSTALLATION
6. FUEL SYSTEM
TOOL
FUEL TANK REMOVAL/INSTALLATION
AIR CLEANER REMOVAL/ INSTALLATION
CARBURETOR REMOVAL/ INSTALLATION
CARBURETOR DISASSEMBLY/ ASSEMBLY
CARBURETOR BODY CLEANING
CARBURETOR INSPECTION
PILOT SCREW REPLACEMENT
CHOKE REPLACEMENT
CARBURETOR STUD BOLT REPLACEMENT
7. GOVERNOR SYSTEM
GOVERNOR MECHANISM
GOVERNOR ARM/CONTROL BASE Assy. REMOVAL/INSTALLATION
CONTROL BASE Assy. DISASSEMBLY/ ASSEMBLY
GOVERNOR ADJUSTMENT
GOVERNOR DISASSEMBLY/ ASSEMBLY
MAXIMUM SPEED ADJUSTMENT
8. CHARGING SYSTEM
TOOL
SYSTEM DIAGRAM
CHARGING SYSTEM TROUBLESHOOTING
COOLING FAN/FLYWHEEL REMOVAL/ INSTALLATION
CHARGE/LAMP COIL REMOVAL/ INSTALLATION
CHARGE/LAMP COIL INSPECTION
9. IGNITION SYSTEM
SYSTEM DIAGRAM
IGNITION SYSTEM TROUBLESHOOTING
IGNITION COIL REMOVAL/ INSTALLATION
IGNITION COIL AIR GAP CHECK/ ADJUSTMENT
SPARK TEST
SPARK PLUG CAP INSPECTION
IGNITION COIL INSPECTION
10. STARTING SYSTEM
SYSTEM DIAGRAM
STARTING SYSTEM TROUBLESHOOTING
RECOIL STARTER Assy. REMOVAL/ INSTALLATION
RECOIL STARTER Assy. DISASSEMBLY/ASSEMBLY
RECOIL STARTER INSPECTION
STARTER MOTOR REMOVAL/ INSTALLATION
STARTER MOTOR DISASSEMBLY/ ASSEMBLY
STARTER MOTOR INSPECTION
11. OTHER ELECTRICAL
COMPONENT LOCATION
CONTROL BOX REMOVAL/ INSTALLATION
CONTROL BOX DISASSEMBLY/ ASSEMBLY
OIL LEVEL SWITCH REMOVAL/ INSTALLATION
ENGINE STOP SWITCH REMOVAL/ INSTALLATION
OIL ALERT UNIT REMOVAL/ INSTALLATION
COMBINATION SWITCH INSPECTION
SILICON RECTIFIER INSPECTION
CIRCUIT PROTECTOR INSPECTION
MAIN FUSE INSPECTION
OIL LEVEL SWITCH INSPECTION
ENGINE STOP SWITCH INSPECTION
OIL ALERT UNIT INSPECTION
REGULATOR/RECTIFIER INSPECTION
12. MUFFLER
MUFFLER REMOVAL/INSTALLATION
EXHAUST PIPE STUD BOLT REPLACEMENT
13. CYLINDER HEAD
TOOLS
CYLINDER HEAD REMOVAL/ INSTALLATION
CYLINDER HEAD DISASSEMBLY/ ASSEMBLY
CYLINDER HEAD/VALVES INSPECTION
VALVE GUIDE REPLACEMENT
VALVE GUIDE REAMING
VALVE SEAT RECONDITIONING
14. CRANKCASE
TOOLS
CRANKCASE COVER REMOVAL/ INSTALLATION
CRANKSHAFT/PISTON REMOVAL/ INSTALLATION
PISTON Assy. DISASSEMBLY/ ASSEMBLY
CRANKCASE COVER/CYLINDER BARREL/PISTON/CONNECTING ROD/ CRANKSHAFT/CAMSHAFT INSPECTION
CRANKSHAFT BEARING/OIL SEAL REPLACEMENT
15. REDUCTION UNIT
TOOLS
REDUCTION UNIT DISASSEMBLY/ ASSEMBLY
REDUCTION UNIT INSPECTION
REDUCTION UNIT BEARING/OIL SEAL REPLACEMENT
16. WIRING DIAGRAMS
HOW TO READ A WIRING DIAGRAM & RELATED INFORMATION
NO CHARGE COIL TYPE
1 A/3 A CHARGE COIL TYPE
7 A CHARGE COIL TYPE
INDEX













