Expert Support
Full Speed
100% Working
John Deere Excavator 50D Parts Catalog PC10117
30 USD
- Description
Description
Contents:
01 Wheels & Tires & Tracks
0110 Powered Wheels, Tires & Fastenings
0130 Track Systems
02 Axles, Differentials & Suspension Systems
0260 Axles, Diff. & Susp. Sys. Hyd. (Incl. Fwd)
04 Engine
0400 ENGINE
05 Engine Auxiliary System
0505 Cold Weather Starting Aids
0510 Engine Cooling Systems
0515 Engine Speed Control
0520 Intake System
0530 External Exhaust Systems
0540 Engine Mounting
0560 External Fuel Supply Systems
13 Miscellaneous Vehicle
1320 Vehicle Finish & Trim
16 Vehicle Electrical Systems
1674 Wiring Harness & Switches
17 Frame Chassis Or Supporting Structure
1740 Frame Installation
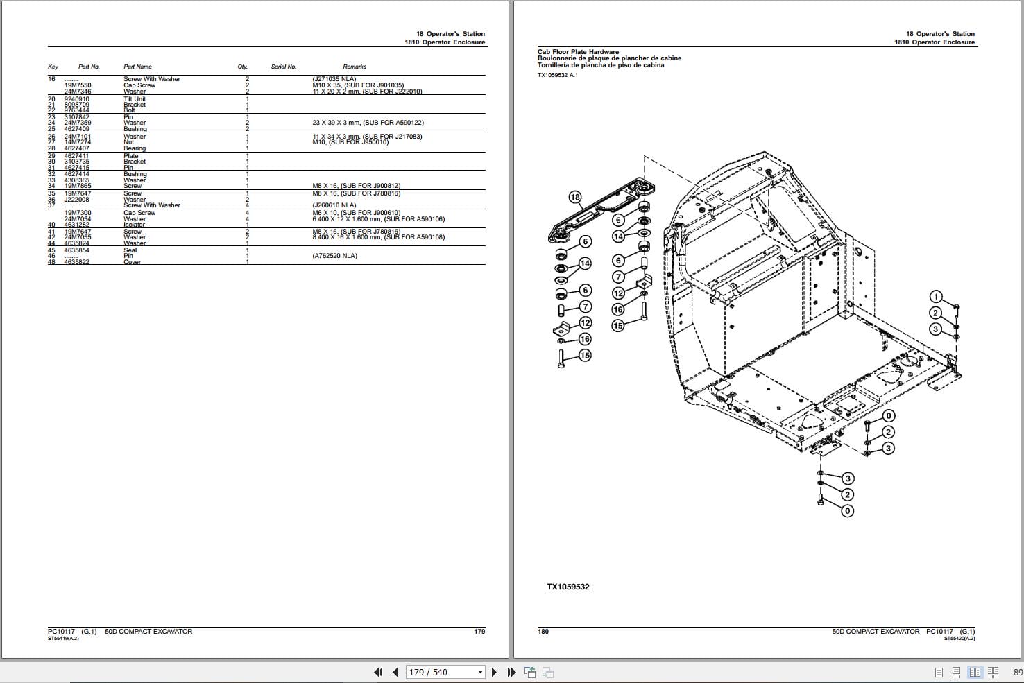
18 Operator’s Station
1810 Operator Enclosure
1811 ROPS, FOPS, OPS, Or Body Frame
1821 Seat And Seat Belts
1830 Heating & Air Conditioning
19 Sheet Metal & Styling
1910 Hood Or Engine Enclosure
20 Safety, Convenience & Miscellaneous
2001 Radio
21 Vehicle Main Hydraulic System
2161 Hydraulic Pumps & Drives
2163 Hydraulic Lines & Hoses
2164 Hydraulic Reservoir, Filter & Cooler
33 Excavator
3301 Blades & Side Cutters
3302 Bucket With Teeth
3315 Controls Linkage
3340 Backhoe & Excavator Frames
3344 Boom
3345 Bucket Linkage
3362 Control & Load Holding Valves
3363 Lines, Hoses & Fittings
3365 Hydraulic Cylinders
43 Swing, Rotation Or Pivoting System
4360 Hydraulics











