✓
Expert Support
✓
Full Speed
✓
100% Working
Kato Truck Crane NK-500E-v Instruction & Service Manual
Size: 68MB
Format: PDF
Language: English
Brand: Kato
Type of Machine: Truck Crane
Type of Manual: Instruction Manual, Service Manual, Electrical and Hydraulic Diagrams
Model: Kato NK-500E-v Truck Crane
Applicable serial Number: 4415567-NK-500E-v
NK500E-v
NK500Ev
NK/500E-v
NK/500Ev
80 USD
- Description
Description
List of files:
Kato Truck Crane NK-500E-v Service Manual (561 Pages)
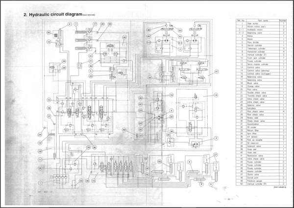
SummarySpecificationsLayout and circuit diagram of equipmentHydraulic equipmentWinch equipmentWinch equipmentBoom equipmentSlewing equipmentOutrigger equipmentElectrical equipment
Kato Truck Crane NK-500E-v Instruction Manual (176 Pages)
Crane Operation SectionRooster Sheave&Jib SectionInspection&Maintenance SectionData SectionSchematicsService manualSummary&General InformationMaintenanceLubricationTightening TorquesLayout and Circuit DiagramsEquipment LayoutHydraulic&Electric DiagramsHydraulic EquipmentWinch EquipmentBoom EquipmentSlewing EquipmentOutrigger EquipmentElectrical Equipment



















