✓
Expert Support
✓
Full Speed
✓
100% Working
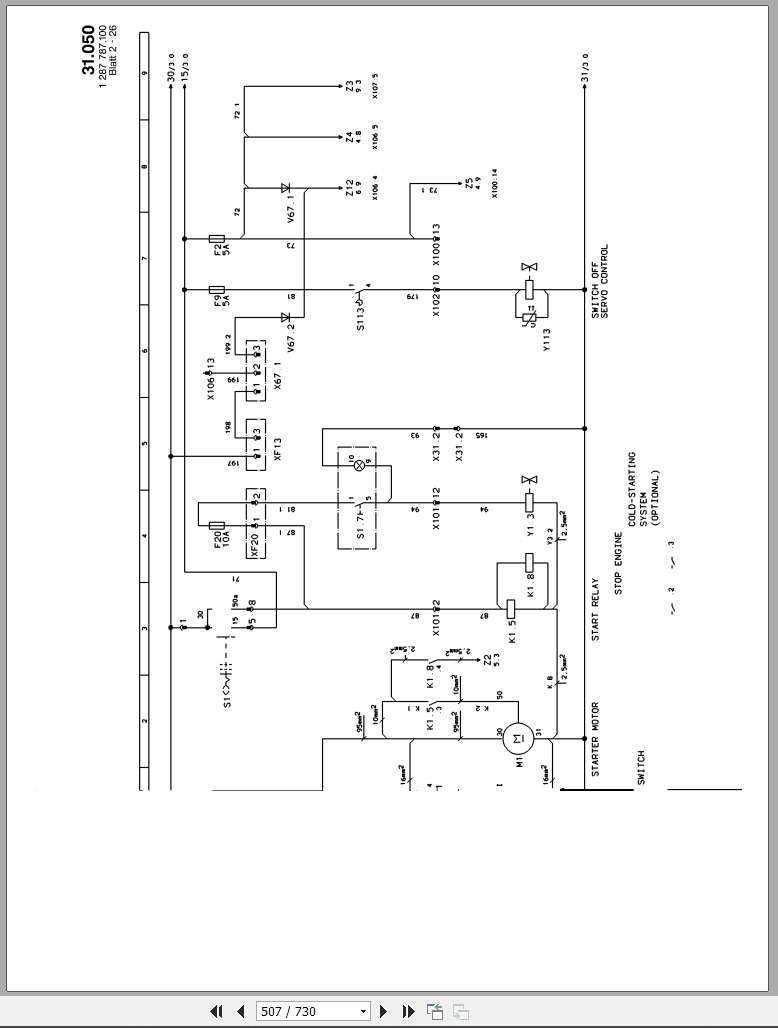
New Holland Crawler Excavator EC130 Service Manual 73179380
Size: 7.68 MB
Format: PDF
Language: English
Brand: New Holland
Type of Machine: Crawler Excavator
Type of Manual: Service Manual, Hydraulic And Electrical Schematic
Model: New Holland EC130 Crawler Excavator
Serial Number: 11701 – 11749
Part Number: 73179380
Number of Pages: 730 Pages
30 USD
- Description
Description
Contents:
Foreword/ Safety Instructions
Welding Operations
Service Data General
Tools
Undercarriage
Superstructure
Diesel Engine
Gearboxes
Hydraulic System
Electrical System
Working Equipment
Fittings, Pipes And Hoses/ Welding For Maintenance And Repair/ Sealing, Protective, Testing And Cleaning Agents













