Expert Support
Full Speed
100% Working
New Holland Wheel Loader W130B Workshop Manual 87634759A
30 USD
- Description
Description
Contents:
General
Section Index – General
Standard Torque Specifications
Fluids and Lubricants
Metric Conversion Chart
Engines
Section Index – Engines
Engine and Radiator Removal and Installation
Stall Tests
After Cooler
For Engine Repair, See the Engine Service Manual 87519804
Fuel System
Section Index – Fuel System
For Fuel System Repair, See the Engine Service Manual 87519804
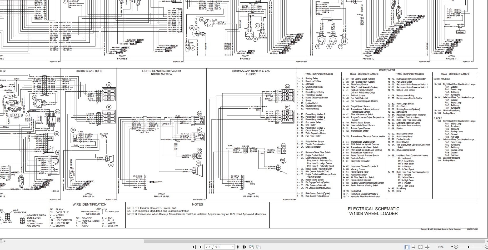
Electrical
Section Index – Electrical
Removal and Installation of Starter and Alternator
Electrical Specifications and Troubleshooting
Batteries
Instrument Cluster
Steering
Section Index – Steering
Removal and Installation of Steering Components
Steering Specifications, Pressure Checks, and Troubleshooting
Steering Cylinders
Center Pivot
Auxiliary Steering Motor and Pump
Power Train
Section Index – Power Train
Removal and Installation of Power Train Components
Transmission Specifications, Pressure Checks, and Troubleshooting
Transmission
Front Axle
Rear Axle
Drive Shafts, Center Bearing, and Universal Joints
Wheels and Tires
Transmission Control Valve
Brakes
Section Index – Brakes
Removal and Installation of Brake Components
Hydraulic Brake Troubleshooting
Brake Pump
Brake Accumulators
Parking Brake
Hydraulics
Section Index – Hydraulics
Removal and Installation of Hydraulic Components
Hydraulic Specifications, Troubleshooting, and Pressure Checks
Cleaning the Hydraulic System
Hydraulic Pump
Loader Control Valve
Cylinders
Coupler Solenoid Locking Valve
Load Travel Stabilization Accumulator
Load Travel Stabilization Valve
Mounted Equipment
Section Index – Mounted Equipment
Air Conditioning Troubleshooting and System Checks For Systems with HFC-134a Refrigerant
Air Conditioner System Service
Removal and Installation of Air Conditioning and Heater Components
Loader
Rollover Protective Structure (ROPS) Cab Structural Frame (CSF)
Cab Glass Installation
Electrical Schematic Foldouts and Hydraulic Schematic Foldout













