✓
Expert Support
✓
Full Speed
✓
100% Working
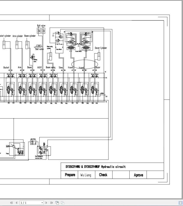
Sany Excavator SY35C Electrical and Hydraulic Circuit Diagram EN ZH
Size: 2.83 MB
Format: PDF
Language: English Chinese
Brand: Sany
Type of Machine: Excavator
Type of Manual: Electrical and Hydraulic Circuit Diagram
Model: Sany SY35C Excavator
20 USD
- Description
Description
List of Files:
Sany Excavator SY35C Display 13797516 1 Pages ZH
Sany Excavator SY35C Cab 13778230 1 Pages ZH
Sany Excavator SY35C Control Swith Harness 13778220 1 Pages ZH
Sany Excavator SY35C Body 13778215 1 Pages ZH
Sany Excavator SY35C Wiring Harness 13778215 1 Pages ZH
Sany Excavator SY35C Electrical Diagram 1 Pages EN
Sany Excavator SY35C Hydraulic Diagram 1 Pages EN













