Expert Support
Full Speed
100% Working
Volvo Excavator EC210B NLC Service Repair Manual
50 USD
- Description
Description
Contents:
1. EC210B NLC
Repair
2 stage port relief valve, adjustment1
2 stage port relief valve, adjustment2
Accumulator, replacing
Adapter, installation
Adapter, removal
Adjustable boom valve, disassembly
Air cleaner primary filter, change
Air cleaner primary filter, clean
Air cleaner secondary filter, change
Air conditioner main filter, change
Air conditioner main filter, clean
Air conditioning unit, maintenance
Air conditioning unit, refrigerant check and recharging
Alternator, replacing incl function check
Arm holding valve, disassembly and assembly
Arm parallel conflux check valve, disassembly and assembly
Arm parallel conflux valve, disassembly and assembly
Arm regenerating and arm conflux check valve, disassembly and assembly
Batteries, replacing1
Batteries, replacing2
Battery condition, check
Battery relay, replacing
Belts and belt tension, check, replace when needed
Boom back pressure check valve, disassembly and assembly
Boom cylinder protecting guard, installation1
Boom cylinder protecting guard, installation2
Boom cylinder protecting guard, removal1
Boom cylinder protecting guard, removal2
Boom holding valve, disassembly
Boom lifting cylinder, disassembly and assembly
Boom lifting cylinder, installation
Boom lifting cylinder, removal
Boom lifting cylinder, troubleshooting
Boom, installation
Boom, removal
Bottom roller, assembly
Bottom roller, disassembly
Bottom roller, installation
Bottom roller, measurement of wear1
Bottom roller, measurement of wear2
Bottom roller, removal
Bottom roller, replacing seal
Bottom roller, wear limit1
Bottom roller, wear limit2
Breather, replacing
Bucket cylinder protecting guard, installation
Bucket cylinder protecting guard, removal
Bucket cylinder, disassembly and assembly
Bucket cylinder, installation
Bucket cylinder, removal
Bucket cylinder, replacing
Bucket cylinder, troubleshooting
Bucket, adjustment of bucket clearance
Cab, installing
Cab, prefilter, clean
Cab, prefilter, replace
Cab, removing
Cab; door, covers, hinges, joints and locks, lubricate
Center bypass valve, disassembly and assembly
Center passage hose (center passage – motor), replacing
Center passage hose (valve – center passage), replacing
Center passage, assembly
Center passage, disassembly
Center passage, inspection and troubleshooting
Center passage, replacing
Center passage, tools
Charge air cooler connection (hose, tube), replacing
Coasting left and right swing
Component locations engine
Compressor, replacing incl draining and filling
Condenser, replacing incl draining and filling
Condition test and maintenance program
Connecting rod yoke, installation
Connecting rod yoke, removal
Connecting rod yoke, replacing
Connectors
Coolant level, check
Coolant, change
Coolant, changing
Coolant, checking anti-freeze resistance
Coolant, checking anti-freeze resistance1
Cooler and Heater assembly, replacing
Counterweight, fitting
Creeping of hydraulic cylinder
Current pressure, specifications1
Current pressure, specifications2
Cylinder speed
Cylinder, disassembly and assembly
Demolition machine, description
Determining cylinder head gasket
Digging unit, maintenance
Dipper arm connecting rod, installation
Dipper arm connecting rod, removal
Dipper arm connecting rod, replacing
Dipper arm cylinder, disassembly and assembly
Dipper arm cylinder, installation
Dipper arm cylinder, removal
Dipper arm cylinder, replacing
Dipper arm, installation
Dipper arm, removal
E-ECU, MID 128, changing non-Programd ECU1
E-ECU, MID 128, changing non-Programd ECU2
E-ECU, MID 128, changing pre-Programd ECU1
E-ECU, MID 128, changing pre-Programd ECU2
Engine mounting1
Engine mounting2
Engine oil and filter, changing
Engine speed control switch, inspection
Engine, oil level, check
Engine, tightening torques
E-tools, NET 8940-00270 Replace tool for the swing ring gear
E-tools, NET 8940-00300 Swing ring gear guide pin
Fan belt and or alternator belt, replacing
Fan belt and or alternator-, compressor belt, replacing all belts
Fan motor, replacing
Feed pump, checking feed pressure
Feed pump, replacing
Fitting cylinder head
Foot relief valve (flow sensing valve), disassembly
Front idler, replacing one
Fuel control valve (FCV), replacing
Fuel filling pump, installing
Fuel filling pump, removing
Fuel filter extra (water separator element), check drain
Fuel filter extra, replacing
Fuel filter, change
Fuel filter, checking
Fuel filters, replacing
Fuel pump, inspection
Fuel rail pressure, checking
Fuel system, bleeding
Fuel tank air ventilation filter, change
Fuel tank sediment, drain
General tools
General, precautions
General, tools
Hydraulic oil drain filter, change
Hydraulic oil level, check
Hydraulic oil return filter, replacing
Hydraulic oil servo filter, change
Hydraulic oil suction strainer, clean
Hydraulic oil tank breather filter, replacing
Hydraulic oil tank, vacuum-pumping, connecting and disconnecting pump
Hydraulic oil, changing
Hydraulic pressure, check
Hydraulic pump (removed), changing shaft seal
Hydraulic pump coupling, description
Hydraulic pump, replacing
Hydraulic quickfit, adjustment
Idler, assembly
Idler, disassembly
Idler, measurement of wear
I-ECU, MID 140, changing non-Programd ECU
I-ECU, MID 140, changing pre-Programd ECU
Injector, replacing one
Line rupture valve (arm), disassembly
Line rupture valve (boom), disassembly
Load check valve – single, disassembly and assembly
Load check valve, disassembly and assembly1
Load check valve, disassembly and assembly2
Logic valve, disassembly and assembly
Loose and loss of bolts, check
Lubrication oil pressure, checking with pressure gauge
Lubrication, see lubrication chart
Machine view, demolition1
Machine view, demolition2
Machine view
Main pressure relief valve, replacing
Main relief valve, adjustment
Main relief valve, disassembly and assembly
Main spool, disassembly and assembly
Maintenance service, daily
Maintenance service, every 50 hours
Maintenance service, every 250 hours
Maintenance service, every 500 hours
Maintenance service, every 1000 hours
Maintenance service, every 2000 hours
Maintenance service, every 4000 hours
Maintenance service, every 6000 hours
MATRIS, reading, export reading
Measuring condition
Measuring of swing bearing clearance
NET 8940-00200 Replace tool for the remote control valve joint
NET 8940-00290 Track motor guide pin
Oil cooler, replacing
Oil cooler, replacing1
Oil level gauge, replacing
Oil-bath air cleaner’s reservoir (optional equipment), clean, and oil, change
Oil-bath air cleaner’s reservoir (optional equipment), filter insert, clean
Oil-bath air cleaner’s reservoir (optional equipment), oil, check
Periodic maintenance
Port relief valve pressure, measuring and adjusting
Port relief valve, disassembly
Preheating coil, replacing
Proportional solenoid valve (power shift), replacing
Proportional solenoid valve, measuring and adjustment
Pump regulator, replacing
Pump, assembly
Pump, disassembly
Pump, installation
Pump, tools
Radiator outside hydraulic oil cooler outside, cleaning
Receiver, replacing incl draining and filling
Regulator, assembly
Regulator, disassembly
Regulator, maintenance
Remote control valve (Lever), assembly
Remote control valve (Lever), disassembly
Remote control valve (Lever), maintenance standard
Remote control valve (pedal), assembly
Remote control valve (pedal), disassembly
Remote control valve (pedal), maintenance standard
Ring gear grease pipe, replacing
Rotator pump, assembly
Rotator pump, disassembly
Rotator pump, parts inspection
Rotator valve, adjustment
Seat, replacing
Service history (included in the respective Operator’s manual), fill in
Servo hydraulic pressure, adjustment
Servo pump, replacing
Slew gearbox, assembly1
Slew gearbox, assembly2
Slew gearbox, disassembly
Slew gearbox, install
Slew gearbox, lubrication1
Slew gearbox, lubrication2
Slew gearbox, maintenance standard2
Slew gearbox, troubleshooting
Slew motor, troubleshooting
Slew ring gear, removal and installation
Solenoid valve, disassembly and assembly
Solenoid valve, inspection
Solenoid valve, replacing
Spring package, assembly
Spring package, disassembly
Sprocket, measurement of wear
Sprocket, replacing one
Starter motor, replacing
Starter relay, replacing
Straight travel changeover valve, disassembly and assembly
Straight traveling performance
Superstructure, installing
Superstructure, removing
Swing bath grease, check
Swing gearbox oil level, check
Swing gearbox, assembly1
Swing gearbox, disassembly1
Swing gearbox, disassembly2
Swing gearbox, maintenance standard1
Swing gearbox, replacing
Swing motor gearbox, changing oil
Swing motor relief valve, replacing
Swing motor removed, replacing seal
Swing motor, assembly
Swing motor, disassembly
Swing motor, maintenance standard
Swing motor, replacing brake piston seal
Swing motor, replacing
Swing ring gear bearing, lubricate
Swing ring gear cover, installation
Swing ring gear cover, removal
Swing ring gear outer seal, replacing
Swing speed
Swing unit, replacing
Test-run and check
The machine, check for external damages, cracks and wear damages
Thermostat, checking
Thermostat, replacing
Tools & equipment
Top roller, assembly1
Top roller, assembly2
Top roller, disassembly1
Top roller, disassembly2
Top roller, measurement of wear1
Top roller, measurement of wear2
Top roller, replacing one
Track chain assembly, installing
Track chain assembly, removing
Track chain, installation1
Track chain, installation2
Track chain, measurement of wear
Track chain, removal
Track chain, wear limit1
Track chain, wear limit2
Track gearbox oil level, check
Track gearbox, assembly1
Track gearbox, assembly2
Track gearbox, disassembly1
Track gearbox, disassembly2
Track gearbox, installation
Track gearbox, maintenance standard
Track gearbox, removal
Track gearbox, replacing cover
Track gearbox, tools
Track guard, replacing one
Track motor gearbox, changing oil
Track motor relief valve, replacing
Track motor, assembly
Track motor, disassembly
Track recoil spring (tensioner) assembly, replacing
Track running speed
Track shoe bolts, check
Track shoe, replacing one
Track tension condition, check
Track, adjusting track sag
Travel Speed
Valve clearance, check adjust
Valves, adjusting1
Valves, adjusting2
VCADS Pro, logged errors, read off
V-ECU, MID 187, changing non-Programd ECU1
V-ECU, MID 187, changing non-Programd ECU2
V-ECU, MID 187, changing pre-Programd ECU1
V-ECU, MID 187, changing pre-Programd ECU2
Viscose mount, installation
Viscose mount, removal
Warranty inspection 100 hours
Warranty inspection 1000 hours
Washer fluid level, check
Water separator filter element, change
W-ECU, MID142, changing non-Programd ECU
W-ECU, MID142, changing pre-Programd ECU
X1 return filter (optional equipment), change
Service Bulletins
A1 solenoid valve coil
Activating and releasing condition of Pre-heater protection
Air conditioning compressor improvement
Air conditioning compressor improvement1
Air conditioning heater hose clamp looseness
Air conditioning switch
Air conditioning system
Air conditioning unit
Air conditioning unit1
Arm conflux hose improvement
Arm conflux hose
Arm cylinder lock nut improvement
Arm improvement
Arm improvement1
Attachment pin improvement
Auto belt tensioner improvement
Battery maintenance guideline for long term stock machines
Battery master switch and bucket lifting hook
Biodegradable hydraulic oil
Boom and dipper arm improvement
Boom pin improvement
Bottom roller improvement
B-series Cab improvements
Bucket design improvement
Bucket improvement
Bucket joint pin
Bucket joint pin1
Bucket master pin improvement
Bumper improvement
Bushing improvement
Cab door handle improvement
Cab door sliding glass replacement procedure
Cab door striker
Cab filter cover sealing
Cab roof window waterproofing procedure
Cab weather strip replacement
Cab wire harness
Cable adjustment of Operator’s seat lower slide rail
Cable harness for air conditioning system
CAC inlet pipe change
Camshaft, hardening process update
CareTrack Telematics system
CareTrack, new software version 2008w6
CD & MP3 player
Check method on engine oil consumption
Check method on engine oil consumption1
Circuit changes of the auxiliary diesel heater
Clamping method improvement of the grease pipes
Coolant level sensor
Coolant level sensor1
Coolant pump improvement
Coolant pump improvement1
Cooling fan adapter broken
Counter weight bolt
Crankshaft and camshaft gear manufacturing improvements
Cylinder liner, specifications
D4 – D7 Alternator improvement
D4,D6,D7 Fan pulley bearing kit
D6 D7 Exhaust gas leakage into the cooling system
D6E and D7E, high pressure pipe leakage
D6E Camshaft, insufficient hardening
D6E Cylinder liner broken
D6E Turbocharger return line leakage
DC-DC converter
DEF AdBlue AUS32 sampling, method
Diesel fuels – quality and function
Dipstick level gauge improvement for swing gearbox
ECU, functional check
Electric connector
Electric horn improvement
Electric horn replacement
Electric horn
Electrical load capacity
Engine ECU(E-ECU) Change and Conversion kit
Engine ECU(E-ECU) Change
Engine limp home switch wire harness
Engine oil in the cooling system or coolant in the oil system
Engine valve cover gasket improvement
Expansion tank
Extra water separator
Fan pulley bearing bracket improvement
Fan pulley bearing improvement
Fan pulley bearing improvement1
Fuel cap improvement
Fuel filler pump service kit
Fuel filler pump
Fuel filter and water separator replacement interval change
Fuel filter change and relocation
Fuel filter modification instruction
Fuel level sender
Fuel Level
Fuel pump (Tier 3) manufacturing process improvement
Fuel pump improvement
Fuel sampling, method
Fuel tank air breather kit
Fuel tank crack
Fuel tank drain valve
Fuel tank mounting plate
Gas spring
Genuine coolant use
Grading kit
Grease gun improvement
Grease nipple commonality
Guidelines of the maximum permissible weight
Handrail improvement
Heat treatment process improvement of the track shoe
Heat-resistant kit for RCV leakage
High altitude Solution
Hose improvement
Hose improvement1
Hose improvement2
Hose rupture valve improvement
Hour counter improvement
Hydraulic couplings, description
Hydraulic hose assembly leakage handling
Hydraulic hose improvement
Hydraulic pipes improvement
Hydraulic pressure, measuring and adjusting
Hydraulic system flushing method
Hydraulic tank air breather
Hydraulic tank air breather1
Idler improvement
Idler wheel and bushing improvement
Idler yoke, improvement
I-ECU display
Improved CAC pipe bracket
Improved dipper arm cylinder lock nut
Improved dipper arm cylinder lock nut1
Improved Fuel Level Sender
Improved heater core
Improved preheating relay
Improved Volvo quick-fit block
Improvement of Main pump hose assembly
Improvement of return check valve
Injector wire harness for D4E D6E D7E
Injector yoke bolt
Injector yoke retention bolt loose
Instruction for replacing arm lock nut
Instrument control unit I-ECU, error symptom
Instrument panel improvement
Instrument panel improvement1
Internal leakage
KOR service bulletin number change
Leakage at engine oil pump gasket
Line rupture valve hose, improvement
Lower frame crack
Lower frame improvement1
Lower frame improvement2
Lower frame improvement3
Lubrication point change on swing bearing
Machine model
Main Control Valve, logic valve
Main pump leakage
Main pump shaft seal leakage
MCV arm holding valve block
MCV logic valve stuck
MCV pipe improvement
Modification of CareTrack wire harness
New air conditioning control switch
New air conditioning control switch1
New air conditioning switch
New cassette radio
New clamp
New Compact Alternator
New Compact Alternator1
New coolant
New drain pipe in the swing drive unit
New engine oil cooler
New fan bracket with profile washer
New fuel filling hoses
New fuel suction cover
New horn
New I-ECU introduction
New I-ECU
New label on the fuel sender
New oil change interval for Volvo bio hydraulic oil
New product
New product1
New product2
New product3
New Radio Antenna
New slew ring gear seal
New slew ring gear seal1
New software for air filter clogging
New software for codelock function correction
New software for engine block heater
New software for high altitude starting improvement
New software release
New software to correct exhaust gas issue during operation
New software, I-ECU
New software
New starter motor
New TechTool VCADS Pro interface
New track chain
New track guard
New track guard1
New track master pin
New Track roller_lower
New track roller_upper
New track roller_upper1
New turbo charger for D6E D7E
Oil analyses
Oil pan leakage protection instruction
Oil sampling, method
Oil sampling, sampling points
Operating hour parameter
Pipe improvement
Pipe improvement2
Plastic shims for Boom Arm pin joints
Poor grading with RCV
Port relief valve, adjustment
Portable refillable O-ring kits
Protection plate
Pump seal improvement
Quick coupler for pressure test port leakage
QUICK FIT CHANGES
QUICK FIT CYLINDER CHANGES
Quick fit improvement
Quickfit system, operation
Radiator improvement information
Radiator improvement
Rain visor
Receiver drier improvement
Receiver drier pressure switch
Recoil spring grease valve
Recoil spring improvement
Recoil spring package rod
Recoil spring valve
Recommendations for Oil Sampling Intervals
Repair Instruction for Auto Deceleration Function
Repair instruction for lower frame
Reporting of product misuse & near-miss report
Reports
Rerouting of the Make-up hose
Revised method for adjusting valve clearance
Right-hand console box
Rotating beacon lamp, tightening torque
Routines for reporting cracks on Boom and Arm
Sight gauge of fuel tank
Slew motor improvement
Slew motor improvement1
Socket
Solenoid valve for rotator
Solenoid valve improvement
Special wire harness for elevated cabin
Sprocket improvement
Strainer improvement
Swing ring gear seal improvement
Swing ring gear seal
Swing ring gear seal1
The checking method of cooling system
Thermostat failure (D4, D5, D6 & D7)
Tool box change
Tool box change1
Tool box improvement
Track drive unit improvement Floating seal leakage
Track link repair kit
Track link seizing
Travel gearbox floating seal improvement
Travel motor relief valve O-ring and Back-up ring
Travel motor wear on the swash plate pivot hole
Travel motor
Travel motor1
Travel motor2
Turbo outlet gasket change
Turbocharger checking instruction
Turbocharger
V-ECU Hardware
V-ECU Programming
Volvo Product incident accident report & Interview Form
Washer check valve
Water in fuel
Water in the swing bath due to manufacturing defect
Water separator drain valve
Water separator improvement
Water separator improvement1
Water separator
Wear in the MCV spools
Windshield wiper wiping range increase
Wire harness protection cover
X1 Line, hydraulic circuits
X1 stop valve
X1 stop valve1
Diagrams
Component list Alternator, batteries, capacitors, electronic units, voltage outlet
Component list Alternator, batteries, capacitors, electronic units, voltage outlet
Component list Control lights warning lights
Component list, Fuses
Component list, Heating coils
Component list, Lights
Component list, Miscellaneous 1
Component list, Miscellaneous
Component list, Motors
Component list, Relays
Component list, Sensors
Component list, Solenoid valves
Component list, Switches
Electrical circuit, air conditioner heater
Electrical symbols and designations
Explanations to hydraulic diagram
Ground connections
Grounding points (frame connections)
Hydraulic circuits, arm in boom raise
Hydraulic circuits, arm in conf fig1
Hydraulic circuits, arm in conflux
Hydraulic circuits, arm out fig 1
Hydraulic circuits, arm out
Hydraulic circuits, ports
Hydraulic circuits, slew (left) fig 1
Hydraulic circuits, slew (left)
Hydraulic circuits, slew priority (slew right arm in fig 1
Hydraulic circuits, slew priority (slew right arm in)
Hydraulic circuits, standard fig 1
Hydraulic circuits, standard
Hydraulic circuits, straight travel arm (straight travel auto shift, arm in)
Hydraulic circuits, straight travel (low auto shift) fig 1
Hydraulic circuits, straight travel (low auto shift)
Hydraulic diagram, neutral
Hydraulic diagram, with option components 1- fig1
Hydraulic diagram, with option components 1
Hydraulic diagram, with option components 2- fig 2
Hydraulic diagram, with option components 2
Hydraulic diagram, with option components fig 1
Hydraulic diagram, with option components
Positive feed
Wiring diagram SCH01
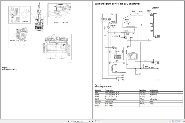
Wiring diagram SCH01-1 (I-ECU equipped)
Wiring diagram SCH01-1
Wiring diagram SCH01-2
Wiring diagram SCH01-3
Wiring diagram SCH01-4
Wiring diagram SCH02
Wiring diagram SCH02-1 (I-ECU equipped) 1
Wiring diagram SCH02-1 (I-ECU equipped)
Wiring diagram SCH02-1
Wiring diagram SCH02-2
Wiring diagram SCH02-3
Wiring diagram SCH03
Wiring diagram SCH03-1 (I-ECU equipped)
Wiring diagram SCH03-1
Wiring diagram SCH03-2
Wiring diagram SCH03-3
Wiring diagram SCH03-4
Wiring diagram SCH04
Wiring diagram SCH04-1 (I-ECU equipped)
Wiring diagram SCH04-1
Wiring diagram SCH04-2
Wiring diagram SCH05 1
Wiring diagram SCH05
Wiring diagram SCH05-1 (I-ECU equipped) 1
Wiring diagram SCH05-1 (I-ECU equipped)
Wiring diagram SCH06
Wiring diagram SCH06-1 (I-ECU equipped)
Wiring diagram SCH07
Wiring diagram SCH07-1
Wiring diagram SCH07-2
Wiring diagram SCH08
Wiring diagram SCH08-1 (I-ECU equipped)
Wiring diagram SCH08-1
Wiring diagram SCH08-2
Wiring diagram SCH08-3
Wiring diagram SCH09
Wiring diagram SCH09-1 (I-ECU equipped)
Wiring diagram SCH10
Wiring diagram SCH10-1 (I-ECU equipped)
Wiring diagram SCH10-1
Wiring diagram SCH10-2
Wiring diagram SCH11
Wiring diagram SCH11-1 (I-ECU equipped)
Wiring diagram SCH11-1
Wiring diagram SCH11-2
Wiring diagram SCH11-3
Wiring diagram SCH12
Wiring diagram SCH12-1 (I-ECU equipped)
Wiring diagram SCH12-1
Wiring diagram SCH12-2
Wiring diagram SCH12-3
Wiring diagram SCH13
Wiring diagram SCH13-1 (I-ECU equipped) 1
Wiring diagram SCH13-1 (I-ECU equipped)
Wiring diagram SCH13-1
Wiring diagram SCH13-2
Wiring diagram SCH14
Wiring diagram SCH14-1 (I-ECU equipped)
Wiring diagram SCH14-1
Wiring diagram SCH15
Wiring diagram SCH15-1 (I-ECU equipped)
Wiring diagram SCH15-2
Wiring diagram SCH16
Wiring diagram SCH16-1 (I-ECU equipped)
Wiring diagram SCH16-1
Wiring diagram SCH16-2
Wiring diagram SCH17
Wiring diagram SCH18
Wiring diagram SCH18-1
Wiring diagram SCH19
Wiring diagram SCH20
Wiring diagram SCH20-1 (I-ECU equipped)
Wiring diagram SCH20-1
Wiring diagram SCH21
Wiring diagram SCH21-1 (I-ECU equipped)
Wiring diagram SCH22
Wiring diagram SCH23
Wiring diagram SCH23-1 (I-ECU equipped)
Wiring diagram SCH24
Wiring diagram SCH24-1
Wiring diagram, Components list and index (I-ECU application)
Wiring diagram, Components list and index
Wiring diagram
Wiring diagrams
Descriptions
2 stage port relief valve, description
2 stage port relief valve, disassembly and assembly
Actuator, air mix door driver
Actuator, foot face driver
Additional counterweight & digging unit
Adjustable boom (1st boom), description
Adjustable boom (2nd boom), description
Adjustable boom and cylinder, specifications
Adjustable boom cylinder, description
Adjustable boom selector valve
Adjustable boom valve, description
Air conditioning switch
Air conditioning unit, description 1
Air conditioning unit, description
Air inlet vacuum and temperature switch, description
Alarm, description
Alternator, description (new)
Alternator, description
Ambient temperature sensor
Arm holding valve, description
Arm regenerating valve, description
Audio remote controller, description
Auto Idle
Auto manual select switch, description
Automatic travel speed control, description
Auxiliary start
Basic check, Engine
Basic control on X1, description
Battery disconnect switch, description
Battery relay, description
Battery, charging
Battery, description
Battery, storage
Blower motor
Boom float position, description
Boom float position, hydraulic circuits
Boom holding valve, description
Boom lifting cylinder, description
Boom regenerating valve, description
Boom, description
Bottom roller, description 1
Bottom roller, description
Bucket cylinder, description 1
Bucket cylinder, description
Bucket operation
Camshaft, description
Center passage, description 1
Center passage, description
Ceramic resistor
Charge air cooler, description
Charging, description
Check valve, description
Checking and Adjusting procedure
Collection of basic data
Communication with data buses
Compressor
Condenser
Connecting rod, description 1
Connecting rod, description
Connecting special tools
Control lockout lever switch, description
Control pattern selector valve, description
Control pattern selector valve, hydraulic circuits
Control system, description
Control units, software functions
Contronic service display unit, description (I-ECU equipped)
Contronic service display unit, display group 1 general information
Contronic service display unit, display group 1, general information (I-ECU equipped)
Contronic service display unit, display group 2, engine system (I-ECU equipped)
Contronic service display unit, display group 2, engine system
Contronic service display unit, display group 3, electrical system (I-ECU equipped)
Contronic service display unit, display group 3, electrical system
Contronic service display unit, display group 4, hydraulic system (I-ECU equipped)
Contronic service display unit, display group 4, hydraulic system
Contronic service display unit, display group 5, program mode (I-ECU equipped)
Contronic service display unit, display group 5, program mode
Contronic service display unit, display group 6, self diagnosis result (I-ECU equipped)
Contronic service display unit, display group 6, self diagnosis result
Contronic service display unit, general
Contronic service display unit, texts and translation summary (I-ECU equipped)
Cooling system, description
Cooling system, operation
Counterweight, description
Counterweight, removing
Crankshaft, description 1
Crankshaft, description
Cylinder head, description
Cylinder, description
Cylinder, troubleshooting
Data buses, function
DC–DC converter, description
Diesel coolant heater (5kw), principles
Dipper arm cylinder, description 1
Dipper arm cylinder, description
Dipper arm, description
Disassembly and assembly, general
Driver’s seat, description
Drying filter
Duct temperature sensor
Electric horn, description
Electrical distribution box, description
Electrical system, description
Electrical system, special instructions for servicing, action when working on machine
Electrical system, special instructions for servicing, electrical components, alternator and charging regulator
Electrical system, special instructions for servicing, electrical components, batteries
Electrical system, special instructions for servicing, electronic components
Electrical system, special instructions for servicing, general
Electronic control system, description
Emergency engine speed control switch, description
Engine block heater, description
Engine characteristic curve
Engine oil pressure sensor, description
Engine oil
Engine speed control switch, description
Engine speed sensor (camshaft), description
Engine speed sensor (crankshaft), description
Engine timing gear, description
Engine, description
Engine, identification
Error code information, general
Error messages on communication and electric system
Error messages on ECUs
Error messages on Engine
Error messages on hydraulic system
Error messages
Evaporator
Examples, hydraulic system
Examples, power transmission
Exhaust system, description
Expansion valve
Foot relief valve (flow sensing valve), description
Foreword additional Service manual Demolition machine
Fuel control valve (FCV), description
Fuel Coolant temperature sensor, description
Fuel feed pump, description
Fuel filler pump, description
Fuel level sensor, description
Fuel system, description 1
Fuel system, description
Fuel tank, description
Function of manual air conditioning switch
Fuse, description
GPS control unit GPS-ECU, description
Hammer and Shears (X1 Line option), description
Hammer return filter, specifications
Hydraulic circuits, ports
Hydraulic components, description
Hydraulic diagram, schematic
Hydraulic main line
Hydraulic pump, description
Hydraulic quickfit, description
Hydraulic system, description
Hydraulic tank, description
Idler, description 1
Idler, description
In-car temperature sensor
Injectors, description
Inlet system, description
Instructions for working with electronic fuel injection
Instrument control unit I-ECU, function description
Instrument panel, description (I-ECU equipped)
Instrument panel, description
Internal Exhaust Gas Recirculation (IEGR), description
Keypad, description
Line rupture valve (arm), description
Line rupture valve (boom), description
Line rupture valve (boom), troubleshooting
Line rupture valve relief pressure, adjustment
Link, description
Logic valve, description
Long reach arm cylinder, description
Lower line
Lower wiper motor, description
Lubrication system, description 1
Lubrication system, description
Lubrication system, principle of operation
Machine display unit (MDU), description
Machine display unit (MDU), display status
Machine display unit (MDU), error code displays
Machine display unit (MDU), status indication
Machine display unit, MDU, functional description
Main control valve troubleshooting
Main control valve, description
Main relief valve, description
Manual air conditioning, description
Overload warning device, operation
Piston cooling
Piston rings, description
Pistons, description 1
Pistons, description
Port relief valve pressure, adjustment (when installing or dismantling the line rupture valve)
Port relief valve, description
Power Boost
Power Take Off (PTO, option), description
Pressure accumulator, description
Pressure relief valve, troubleshooting
Proportional solenoid valve, description
Proportional solenoid valve, troubleshooting
Proportional solenoid valve
Pump control curves
Pump, troubleshooting
rack gearbox, precautions for operation
Radio with CD and MP3 player, description
Radio with tape player, description (new type)
Radio with tape player, description
Radio, description
Receiver drier, changing
Recommended lubricants
Refrigerant hoses
Regulator, description
Relay box, description 1
Relay box, description 2
Relay box, description
Remote control valve (Lever), description
Remote control valve (lever), replacing
Remote control valve (Lever), troubleshooting
Remote control valve (pedal), description
Remote control valve (pedal), replacing
Remote control valve (pedal), troubleshooting
Resistance box, description
Return and pump line
Rotator (X3 Line option), description
Rotator (X3 Line option), hydraulic circuits and principle of operation
Rotator pump, description
Safety start relay, description
Selection of track shoes
Service connection and programming connection
Service positions
Servo hydraulic line
Servo hydraulic selector valve, description
Servo pump, description
Shuttle valve block, description
Shuttle valve for hammer and shear – A type
Single pedal stopper position
Slew gearbox, description
Slew motor, adjustment
Slew ring gear, description
Slow blow fuse, description
Software functions, related to electrical system (I-ECU equipped)
Software functions, related to electrical system
Software functions, related to engine
Software functions, related to hydraulic system (I-ECU equipped)
Software functions, related to hydraulic system
Software parameters, description
Solenoid valve (1) for hammer and shear selection
Solenoid valve (2) for hammer and shear 2-pump flow
Solenoid valve, description 1
Solenoid valve, description
Solenoid valve, troubleshooting
Special tools for troubleshooting
Specification, filling capacities
Specification, filling capacities1
Spring package, assembly dimension
Standard of the setting pressure
Start switch, description
Starter motor, description 1
Starter motor, description
Starting engine with booster cables
Starting operation
Stop valve
Straight travel pedal, description
Swing motor, description
Swing motor, principle of operation
Swing ring gear inner seal, replacing
Three point relay
Tightening torque, specifications
Top roller, description 1
Top roller, description
Track chain, description
Track gearbox, description 1
Track gearbox, description
Track gearbox, precautions for operation
Track gearbox, troubleshooting
Track motor, description
Track motor, maintenance standard
Track motor, precautions for operation
Track motor, troubleshooting
Travel alarm, description
Travel alarm
Troubleshooting (5kw)
Troubleshooting strategy
Troubleshooting tools
Troubleshooting
Turbocharger, description
Undercarriage, description 1
Undercarriage, description
Upper wiper motor, description
Valves, description
VCADS Pro service tool
Vehicle control unit V-ECU, function description (I -ECU equipped)
Vehicle control unit V-ECU, function description
Vibration damper, description
Viscose mount, description
Warranty inspection
Water temperature sensor
Welding on the machine
Window limit switch, description
Windscreen wiper, components location
Windscreen wiper, description
Wiper controller, description
Wire harness layout
X1 2 pump flow piping
Special tool catalog
General
Index
Hooks
1. Enviroment and Safety equipment
2. Measuring equipment
3. Tightening and Loosening tools
4. Lifting equipment
5. Pullers and Pressing equipment
6. Drifts
7. Guide pins and Guide sleeves
8. Pliers
9. Fixtures
10. Tech Tool
11. Spare parts
Time Guide Current generation
Time Guide Previous generation











