Expert Support
Full Speed
100% Working
Volvo Excavator EC240B NLC Service Repair Manual
50 USD
- Description
Description
Contents:
1 Volvo EC240B NLC
Descriptions
2 pump flow piping
2 stage port relief valve, adjustment
2 stage port relief valve, description
2 stage port relief valve, description1
2 stage port relief valve, description2
2 stage port relief valve, disassembly and assembly1
2 stage port relief valve, disassembly and assembly2
2 stage port relief valve, disassembly
Actuator, air mix door driver
Actuator, foot face driver
Additional counterweight & digging unit
Adjustable boom (1st boom), description
Adjustable boom (2nd boom), description
Adjustable boom selector valve
Adjustable boom selector valve1
Adjustable boom valve, description
Air cleaner and precleaner, description
Air conditioning switch
Air conditioning unit, description1
Air conditioning unit, description2
Alarm, description
Alternator, description (new)
Alternator, description
Ambient temperature sensor
Arm holding valve, description
Arm regenerating valve, description
Auto manual select switch, description
Auxiliary start
Basic check, Engine
Battery disconnect switch, description1
Battery relay, description
Battery, charging
Battery, description
Battery, storage
Blower motor
Boom float position, hydraulic circuits
Boom holding valve, description
Boom lifting cylinder, description
Boom regenerating valve, description
Boom, description1
Boom, description2
Bottom roller, description1
Bottom roller, description2
Bucket cylinder, description
Bucket operation1
Bucket operation2
Cab air filtering, description
Camshaft, description1
Camshaft, description2
Center passage, description1
Center passage, description2
Ceramic resistor
Charge air cooler, description
Charging, description
Check valve, description
Checking and Adjusting procedure
Compressor
Condenser
Connecting rod, description
Connectors
Control lockout lever switch, description
Control pattern change valve, description
Control pattern selector valve, hydraulic circuits
Control system, description
Control unit, description
Contronic service display unit, display group 1 general information
Contronic service display unit, display group 2, engine system
Contronic service display unit, display group 3, electrical system
Contronic service display unit, display group 4, hydraulic system
Contronic service display unit, display group 5, program mode
Contronic service display unit, display group 6, self diagnosis result
Contronic service display unit, general
Cooling system, description1
Cooling system, description2
Crankshaft, description
Cylinder head gasket, description
Cylinder head, description
Cylinder liner, description
Cylinder, description
Cylinder, troubleshooting
DC–DC converter, description
Description, general
Diesel coolant heater (5kw), description
Diesel coolant heater (5kw), principles
Diesel coolant heater (10kw), description
Diesel coolant heater (10kw), principles
Dipper arm cylinder, description
Dipper arm, description1
Dipper arm, description2
Disassembly and assembly, general
Driver’s seat, description
Drying filter
Duct temperature sensor
Electric horn, description
Electrical distribution box, description
Electrical system, description
Electrical system, special instructions for servicing, action when working on machine
Electrical system, special instructions for servicing, electrical components, alternator and charging regulator
Electrical system, special instructions for servicing, electrical components, batteries
Electrical system, special instructions for servicing, electronic components
Electrical system, special instructions for servicing, general
Emergency engine speed control switch, description
Engine block heater, description
Engine characteristic curve1
Engine characteristic curve2
Engine oil pressure sensor, description
Engine speed control switch, description1
Engine speed control switch, description2
Engine timing gear, description
Engine, description1
Engine, description2
Error code information, general
Error messages on Engine
Evaporator
Examples, hydraulic system
Examples, power transmission
Exhaust system, description1
Exhaust system, description2
Expansion valve
Fan motor, description
Fan motor, troubleshooting
Fan pump, description
Fire extinguisher, description
Foot relief valve (flow sensing valve), description
Foreword additional Service manual Demolition machine
Fuel control valve (FCV), description
Fuel Coolant temperature sensor, description
Fuel feed pump, description
Fuel filler pump, description
Fuel level sensor, description
Fuel lines, description1
Fuel lines, description2
Fuel system, description1
Fuel system, description2
Fuel tank, description1
Fuel tank, description2
Function of manual air conditioning switch
Fuse, description
Hammer and Shears (X1 Line option), description1
Hammer and Shears (X1 Line option), description2
Hammer return filter, specifications
Heating system, description
Hydraulic components, description
Hydraulic components, storage and transport
Hydraulic diagram, schematic
Hydraulic oil cooling system, description
Hydraulic oil, description
Hydraulic oil, storage and handling
Hydraulic pump, description
Hydraulic quickfit, description
Hydraulic system, cleanliness when handling hydraulic components
Hydraulic system, description
Hydraulic system, repair of hydraulic components in workshop
Hydraulic system, work instructions
Hydraulic tank, description
Idler, description1
Idler, description2
In-car temperature sensor
Injectors, description
Inlet system, description
Instructions for working with electronic fuel injection
Instrument panel, description (I-ECU equipped)
Instrument panel, description
Internal Exhaust Gas Recirculation (IEGR), description
Line rupture valve (arm), description
Line rupture valve (boom), description
Line rupture valve (boom), troubleshooting
Link, description1
Link, description2
Logic valve, description
Logic valve, description1
Lower line
Lower wiper motor, description
Lubrication system, description1
Lubrication system, description2
Lubrication system, principle of operation
Machine display unit (MDU), description
Machine display unit (MDU), display status
Machine display unit (MDU), error code displays
Machine display unit (MDU), status indication
Main control valve troubleshooting
Main control valve, description
Main line
Main relief valve, description
Manual air conditioning, description
Overload warning device, operation
Piston cooling
Piston rings, description
Pistons, description
Port relief valve, description
Power Take Off (PTO, option), description
Power transmission, description
Preheating, description
Pressure accumulator, description
Pressure relief valve, troubleshooting
Proportional relief valve, description
Proportional solenoid valve, description
Proportional solenoid valve, troubleshooting
Proportional solenoid valve1
Proportional solenoid valve2
Pump, troubleshooting
Radio with CD and MP3 player, description
Radio with tape player, description (new type)
Radio with tape player, description
Receiver drier, changing
Recommended lubricants
Refrigerant hoses
Regulator, description
Relay box, description1
Relay box, description2
Relay box, description3
Remote control valve (Lever), description
Remote control valve (Lever), troubleshooting
Remote control valve (pedal), description
Remote control valve (pedal), troubleshooting
Resistance box, description
Return and pump line
Reversible cooling fan, description
Rotator (X3 Line option), description1
Rotator (X3 Line option), description2
Rotator (X3 Line option), hydraulic circuits and principle of operation
Rotator pump, description
Safety start relay, description
Selection of track shoes
Service positions
Servo hydraulic line
Servo hydraulic line1
Servo hydraulic selector valve, description
Servo pump, description
Shuttle valve block, description
Shuttle valve for hammer and shear – A type
Single pedal stopper position
Slew gearbox, description1
Slow blow fuse, description
Solenoid valve (1) for hammer and shear selection1
Solenoid valve (1) for hammer and shear selection2
Solenoid valve (2) for hammer and shear 2-pump flow1
Solenoid valve (2) for hammer and shear 2-pump flow2
Solenoid valve, description
Solenoid valve, troubleshooting
Specification, filling capacities
Specification, filling capacities1
Standard of the setting pressure
Start switch, description
Starter motor, description
Starting engine with booster cables
Starting operation
Stop valve
Swing brake, description
Swing gearbox, description2
Swing motor, description1
Swing motor, description2
Swing motor, description3
Swing motor, principle of operation
Swing ring gear inner seal, replacing1
Swing ring gear inner seal, replacing2
Swing ring gear, description
Three point relay
Tightening torque, specifications
Top roller, description1
Top roller, description2
Track chain, description1
Track chain, description2
Track chain, description3
Track gearbox, description
Track gearbox, troubleshooting
Track motor, description1
Track motor, description2
Track motor, maintenance standard
Track motor, operating checks
Track motor, precautions for operation
Track motor, troubleshooting
Travel alarm, description
Troubleshooting (5kw)1
Troubleshooting (5kw)2
Troubleshooting (10kw)
Troubleshooting strategy
Troubleshooting, diagnosing procedure
Troubleshooting
Turbocharger, description
Undercarriage, description1
Undercarriage, description2
Upper wiper motor, description
Valves, description
Vibration damper, description
Viscose mount, description
Water separator heater, description
Water temperature sensor
Welding on the machine
Window limit switch, description
Windscreen wiper, components location
Windscreen wiper, description
Wiper controller, description
Wire harness layout
Diagrams
Component designations
Component list Alternator, batteries, capacitors, electronic units, voltage outlet
Component list Control lights warning lights1
Component list Control lights warning lights2
Component list, Fuses1
Component list, Fuses2
Component list, Heating coils
Component list, Lights
Component list, Miscellaneous1
Component list, Miscellaneous2
Component list, Motors
Component list, Relays
Component list, Sensors
Component list, Solenoid valves
Component list, Switches1
Component list, Switches2
Components list
Control pattern selector valve, ports
Electrical circuit, air conditioner (10kw) heater
Electrical circuit, air conditioner heater
Electrical symbols and designations
Explanations to hydraulic diagram
Ground connections
Ground connections1
Grounding points (frame connections)
Hydraulic diagram, arm in boom raise Figure 1
Hydraulic diagram, arm in boom raise
Hydraulic diagram, arm in conflux Figure 1
Hydraulic diagram, arm in conflux
Hydraulic diagram, arm out Figure 1
Hydraulic diagram, arm out
Hydraulic diagram, boom lower Figure 1
Hydraulic diagram, boom lower
Hydraulic diagram, boom raise conflux (internal) Figure 1
Hydraulic diagram, boom raise conflux (internal)
Hydraulic diagram, bucket Figure 1
Hydraulic diagram, bucket
Hydraulic diagram, neutral
Hydraulic diagram, ports
Hydraulic diagram, slew (left) Figure 1
Hydraulic diagram, slew (left)
Hydraulic diagram, slew priority (slew right arm in) Figure 1
Hydraulic diagram, slew priority (slew right arm in)
Hydraulic diagram, standard1 Figure 1
Hydraulic diagram, standard1
Hydraulic diagram, standard2 Figure 1
Hydraulic diagram, standard2
Hydraulic diagram, standard3 Figure 1
Hydraulic diagram, standard3
Hydraulic diagram, straight travel (low auto shift) Figure 1
Hydraulic diagram, straight travel (low auto shift)
Hydraulic diagram, straight travel arm (straight travel auto shift, arm in) Figure 1
Hydraulic diagram, straight travel arm (straight travel auto shift, arm in)
Hydraulic diagram, with option components1 Figure 1
Hydraulic diagram, with option components1
Hydraulic diagram, with option components2 Figure 1
Hydraulic diagram, with option components2
Hydraulic diagram, with option components3 Figure 1
Hydraulic diagram, with option components3
Hydraulic diagram, with option components4 Figure 1
Hydraulic diagram, with option components4
Hydraulic diagram, with reversible cooling fan Figure1
Hydraulic diagram, with reversible cooling fan
Positive feed
Waste handler, electrical circuit1
Waste handler, electrical circuit2
Waste handler, electrical circuit3
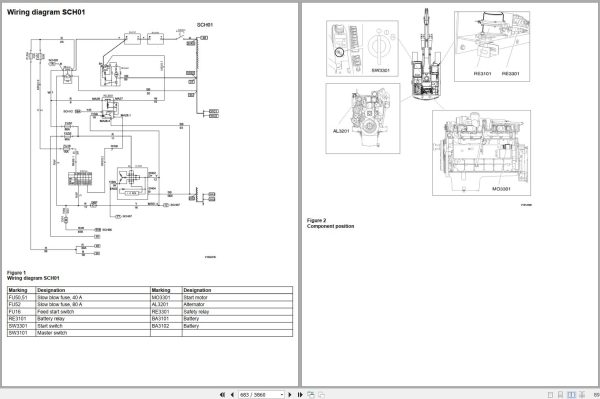
Wiring diagram SCH01
Wiring diagram SCH01_T3-1
Wiring diagram SCH01_T3-2
Wiring diagram SCH01-1 (I-ECU equipped)1
Wiring diagram SCH01-1 (I-ECU equipped)2
Wiring diagram SCH01-1
Wiring diagram SCH01-2
Wiring diagram SCH01-3
Wiring diagram SCH01-4
Wiring diagram SCH02
Wiring diagram SCH02_T3
Wiring diagram SCH02-1 (I-ECU equipped)1
Wiring diagram SCH02-1 (I-ECU equipped)2
Wiring diagram SCH02-1
Wiring diagram SCH02-2
Wiring diagram SCH02-3
Wiring diagram SCH03
Wiring diagram SCH03_T3
Wiring diagram SCH03-1 (I-ECU equipped)
Wiring diagram SCH03-1
Wiring diagram SCH03-1_T3
Wiring diagram SCH03-2
Wiring diagram SCH03-3
Wiring diagram SCH03-4
Wiring diagram SCH04
Wiring diagram SCH04_T3
Wiring diagram SCH04-1 (I-ECU equipped)1
Wiring diagram SCH04-1 (I-ECU equipped)2
Wiring diagram SCH04-1
Wiring diagram SCH04-2
Wiring diagram SCH05
Wiring diagram SCH05_T3
Wiring diagram SCH05-1 (I-ECU equipped)
Wiring diagram SCH06
Wiring diagram SCH06_T3
Wiring diagram SCH06-1 (I-ECU equipped)
Wiring diagram SCH07
Wiring diagram SCH07_T3
Wiring diagram SCH07-1
Wiring diagram SCH07-2
Wiring diagram SCH07-3
Wiring diagram SCH08
Wiring diagram SCH08_T3
Wiring diagram SCH08-1 (I-ECU equipped)
Wiring diagram SCH08-1
Wiring diagram SCH08-2
Wiring diagram SCH08-3
Wiring diagram SCH09
Wiring diagram SCH09_T3
Wiring diagram SCH09-1 (I-ECU equipped)1
Wiring diagram SCH09-1 (I-ECU equipped)2
Wiring diagram SCH10
Wiring diagram SCH10_T3
Wiring diagram SCH10-1 (I-ECU equipped)1
Wiring diagram SCH10-1 (I-ECU equipped)2
Wiring diagram SCH10-1
Wiring diagram SCH10-2
Wiring diagram SCH11
Wiring diagram SCH11_T3
Wiring diagram SCH11-1 (I-ECU equipped)
Wiring diagram SCH11-1
Wiring diagram SCH11-2
Wiring diagram SCH11-3
Wiring diagram SCH12
Wiring diagram SCH12_T3
Wiring diagram SCH12-1 (I-ECU equipped)1
Wiring diagram SCH12-1 (I-ECU equipped)2
Wiring diagram SCH12-1 (I-ECU equipped)3
Wiring diagram SCH12-1
Wiring diagram SCH12-2
Wiring diagram SCH12-3
Wiring diagram SCH13
Wiring diagram SCH13_T3
Wiring diagram SCH13-1 (I-ECU equipped)1
Wiring diagram SCH13-1 (I-ECU equipped)2
Wiring diagram SCH13-1
Wiring diagram SCH13-2
Wiring diagram SCH14
Wiring diagram SCH14_T3
Wiring diagram SCH14-1 (I-ECU equipped)1
Wiring diagram SCH14-1 (I-ECU equipped)2
Wiring diagram SCH14-1
Wiring diagram SCH15
Wiring diagram SCH15_T3
Wiring diagram SCH15-1 (I-ECU equipped)
Wiring diagram SCH15-1
Wiring diagram SCH16
Wiring diagram SCH16_T3
Wiring diagram SCH16-1 (I-ECU equipped)
Wiring diagram SCH16-1
Wiring diagram SCH16-2
Wiring diagram SCH17
Wiring diagram SCH17_T3
Wiring diagram SCH17-1
Wiring diagram SCH18
Wiring diagram SCH18_T3
Wiring diagram SCH18-1
Wiring diagram SCH19
Wiring diagram SCH20
Wiring diagram SCH20-1 (I-ECU equipped)
Wiring diagram SCH20-1
Wiring diagram SCH21
Wiring diagram SCH21-1 (I-ECU equipped)
Wiring diagram SCH22
Wiring diagram SCH23
Wiring diagram SCH23-1 (I-ECU equipped)
Wiring diagram SCH24
Wiring diagram, Components list and index (I-ECU application)
Wiring diagram, Components list and index
Wiring diagram
Wiring diagram1
Wiring diagrams
Installation Instructions
1 pump double acting piping, installing new
2 pump double acting piping, installing new
2.5M arm pip W-GR manuovre
2.5M arm piping with Q-Fit
2.5M arm piping with X1
2.5M arm piping with X3
2.97M arm pip W-GR manuovre
2.97m arm piping with Qfit
2.97M arm piping with X1
2.97m arm piping with X3
2-switch control on X1 (on off, 2-way), installing new
3.6M arm pip WGR monuovre
3.6M arm piping with X1
6.0M bm pip with H Rupt prot
6.0M bm pip WO H Rupt prot
6.0m boom piping with Q fit
6.0m boom piping with X3
6.0m boom piping with X3-1
10 KW diesel coolant heater
Anti vandal kit
Anti-vandal kit
Block heater, 120V
Block heater, 240V
Boom float position
Boom float position1
CareTrack
Diesel coolant heater 10 KW, installing new
Diesel coolant heater
Extra pip for Slope Rot on X1
Extra work lamp
Fabirc seat with heating & suspension
FOG (Falling Object Guard), installing new
FOG
FOPS (Falling Object Protecting Structure), installing new
FOPS
Front rain shield
Fuel filler pump – 35Lpm
Fuel filler pump – 50Lpm + auto stop
Hammer hydraulic option, installing new1
Hammer hydraulic option, installing new2
Lower wiper
Net kit – front safety window
Oil bath air cleaner
Oil bath air cleaner1
Oil leak line on 6.0M boom
Oil leak line on base machine
Pedal control on X1 (proportional, 2-way)
Pedal control on X1(proportional, 2-way)1
Pilot control change
Pre-cleaner oil bath type, installing new
Q-Fit piping on base machine
Quick fit piping on arm, installing new1
Quick fit piping on arm, installing new2
Quick fit piping on arm, installing new3
Quick fit piping on arm-UQF, installing new1
Quick fit piping on arm-UQF, installing new2
Quick fit piping on arm-UQF, installing new3
Quick fit piping on Base machine-UQF
Quick fit piping on boom, installing new
Quick Fit S1
Quick fit S2
Radio, installing new1
Return filter for hammer shear, installing new
Rotation beacon
Rotation beacon1
Straight travel pedal
Sun shield front, roof, rear
Sunlight protection-roof
Switch control on X1 (On Off,1-way), installing new
Travel alarm, installing new1
Travel alarm1
Travel alarm2
Tropical cooling-from global std to trp
With H Rupt prot+OL warning
Work light rear, installing new
X1 modification from 1 pump to 2 pump
X1 with 1 pump flow
X1 with 1pump flow1
X1 with 2pump flow1
X1 with add return filter1
X1 with add return filter2
X3 piping on base machine1
X3 piping on base machine2
X3 piping on base machine3
Repair
2 stage port relief valve, adjustment1
2 stage port relief valve, adjustment2
Adjustable boom valve, disassembly
Air conditioning unit, maintenance
Air conditioning unit, refrigerant check and recharging
Arm holding valve, disassembly and assembly
Arm parallel conflux check valve, disassembly and assembly
Arm parallel conflux valve, disassembly and assembly
Arm regenerating and arm conflux check valve, disassembly
Batteries, replacing
Boom back pressure check valve, disassembly and assembly
Boom cylinder, replacing
Boom holding valve, disassembly
Boom lifting cylinder, disassembly and assembly
Boom, installation
Boom, installation1
Boom, removal1
Boom, removal2
Boom, replacing
Bottom roller, assembly
Bottom roller, disassembly
Bottom roller, installation
Bottom roller, removal
Bottom roller, replacing seal
Bottom roller, wear limit
Bucket assembly, replacing
Bucket cylinder, disassembly and assembly1
Bucket cylinder, disassembly and assembly2
Bucket cylinder, replacing
Bucket, adjustment of bucket clearance
Cab, installing
Cab, removing
Center bypass valve, disassembly and assembly
Center passage, assembly
Center passage, disassembly
Center passage, inspection and troubleshooting
Center passage, tools
Charge air cooler connection (hose, tube), replacing
Charge air system, inspection
Coasting left and right swing
Component locations1
Component locations2
Connecting rod yoke, replacing
Connectors
Coolant, changing
Coolant, checking anti-freeze resistance
Coolant, checking anti-freeze resistance1
Counterweight, removing1
Counterweight, removing2
Creeping of hydraulic cylinder
Cylinder speed
Cylinder, disassembly and assembly
Demolition machine, description
Digging unit, maintenance1
Digging unit, maintenance2
Dipper arm connecting rod, replacing
Dipper arm cylinder, disassembly and assembly
Dipper arm cylinder, replacing
Dipper arm, installation1
Dipper arm, installation2
Dipper arm, removal1
Dipper arm, removal2
Dipper arm, replacing
E-ECU, MID 128, changing non-Programd ECU
E-ECU, MID 128, changing pre-Programd ECU
Engine mounting1
Engine mounting2
Engine speed control switch, inspection1
Engine speed control switch, inspection2
E-tools, NET 8940-00270 Replace tool for the swing ring gear
E-tools, NET 8940-00300 Swing ring gear guide pin
E-tools, NET 8940-00330 Swing motor guide pin
Exhaust pipe, flexible tube, replacing
Expansion tank, replacing
Fan belt and or alternator belt, replacing
Fan motor, assembly
Fan motor, disassembly
Fan motor, replacing
Fan motor, tools
Fan pump, assembly1
Fan pump, assembly2
Fan pump, disassembly1
Fan pump, disassembly2
Fan pump, parts inspection
Feed pump, checking feed pressure
Fire extinguisher, fault indication1
Fire extinguisher, fault indication2
Foot relief valve (flow sensing valve), disassembly
Fuel filter extra, replacing
Fuel filter, checking
Fuel filters, replacing
Fuel pump, inspection
Fuel rail pressure, checking
Fuel system, bleeding
Fuel tank, replacing
Fuse box, description
Fuse box, specifications
General, precautions
General, tools
Hydraulic pump coupling, description
Hydraulic quickfit, adjustment
Idler, assembly
Idler, disassembly
Idler, installation
Idler, measurement of wear
Idler, removal
Idler, tools for disassembly and assembly
I-ECU, MID 140, changing non-Programd ECU
I-ECU, MID 140, changing pre-Programd ECU
Intercooler, replacing
Line rupture valve (arm), disassembly
Line rupture valve (boom), disassembly
Line rupture valve, adjustment
Load check valve – single, disassembly and assembly
Load check valve, disassembly and assembly1
Load check valve, disassembly and assembly2
Logic valve, disassembly and assembly
Lubrication oil pressure, checking with pressure gauge
Machine view, demolition1
Machine view, demolition2
Machine view, waste handler
Machine view
Main relief valve, adjustment
Main relief valve, disassembly
Main spool, disassembly and assembly
Measuring condition
Measuring of swing bearing clearance
NET 8940-00170 Replace tool for the hydraulic tank and fuel tank
NET 8940-00200 Replace tool for the remote control valve joint
NET 8940-00210 Inspection tool for the rotary switch
NET 8940-00220 Inspection tool for the power shift valve
NET 8940-00260 Replace tool for the center passage
NET 8940-00290 Track motor guide pin
NET 8940-00400 Replace tool for hydraulic return check valve
Oil cooler, replacing
Periodic maintenance
Port relief valve pressure, measurement
Port relief valve, adjustment
Port relief valve, disassembly
Preheating coil, replacing
Proportional solenoid valve, measuring and adjustment
Pump, assembly
Pump, disassembly
Pump, installation
Pump, maintenance standard
Pump, tools
Radiator hose upper, replacing
Radiator hoses lower, replacing
Radiator, replacing1
Radiator, replacing2
Regulator, assembly
Regulator, disassembly
Regulator, maintenance
Remote control valve (Lever), assembly
Remote control valve (Lever), disassembly
Remote control valve (Lever), maintenance standard
Remote control valve (lever), replacing
Remote control valve (pedal), assembly
Remote control valve (pedal), disassembly
Remote control valve (pedal), maintenance standard
Remote control valve (pedal), replacing
Rotator pump, assembly
Rotator pump, disassembly
Rotator pump, parts inspection
Rotator valve, adjustment
Seat, replacing
Servo hydraulic pressure, adjustment
Servo pump, parts inspection
Silencer, replacing
Slew gearbox, assembly
Slew gearbox, disassembly
Slew gearbox, lubrication
Slew gearbox, maintenance standard
Slew gearbox, troubleshooting
Slew motor, adjustment
Slew motor, lubrication and air purging
Slew motor, troubleshooting
Slew ring gear, removal and installation
Solenoid valve, disassembly and assembly
Solenoid valve, inspection
Spring package, assembly
Spring package, disassembly
Sprocket, installation
Sprocket, measurement of wear
Sprocket, removal
Sprocket, replacing one
Straight travel changeover valve, disassembly and assembly
Straight traveling performance
Superstructure, installing
Superstructure, removing
Swing motor, assembly
Swing motor, disassembly
Swing motor, maintenance standard
Swing ring gear cover, installation
Swing ring gear cover, removal
Swing ring gear outer seal, replacing
Swing speed
Tools & equipment
Top roller, assembly
Top roller, disassembly
Top roller, installation
Top roller, measurement of wear
Top roller, removal
Track chain, installation
Track chain, measurement of wear
Track chain, removal
Track chain, wear limit1
Track chain, wear limit2
Track gearbox, assembly1
Track gearbox, assembly2
Track gearbox, disassembly1
Track gearbox, disassembly2
Track gearbox, installation1
Track gearbox, installation2
Track gearbox, maintenance standard
Track gearbox, precautions for operation1
Track gearbox, precautions for operation2
Track gearbox, removal
Track gearbox, tools
Track motor, assembly
Track motor, disassembly
Track running speed
Track, adjusting track sag
Travel Speed
Turbocharger, inspection
Turbocharger, replacing
Valves, adjusting1
Valves, adjusting2
V-ECU (MID187) Vehicle control unit, active measuring conditions
V-ECU (MID187) Vehicle control unit, passive measuring conditions
V-ECU, MID 187, changing non-Programd ECU
V-ECU, MID 187, changing pre-Programd ECU
Viscose mount, installation
Viscose mount, removal
Waste handler, maintenance
W-ECU, MID142, changing non-Programd ECU
W-ECU, MID142, changing pre-Programd ECU
Safety
Cautions during operation
General precautions
Move and operate machine safely
Preparations for work
Service Bulletins
A1 solenoid valve coil
Activating and releasing condition of Pre-heater protection
Air conditioning compressor improvement 1
Air conditioning compressor improvement 2
Air conditioning compressor improvement
Air conditioning heater hose clamp looseness
Air conditioning switch
Air conditioning system
Air conditioning unit 1
Air conditioning unit
Arm improvement
Attachment shims for clearance adjustment of pin joint
Auto belt tensioner improvement
Battery maintenance guideline for long term stock machines
Battery master switch and bucket lifting hook
Boom and dipper arm improvement
Boom float option installation
Boom pin improvement
B-series Cab improvements
Bucket improvement
Bucket upper plate
Bumper improvement
Bushing improvement
Cab door handle improvement
Cab door sliding glass replacement procedure
Cab door striker
Cab filter cover sealing
Cab roof window waterproofing procedure
Cab weather strip replacement
Cab wire harness
Cable adjustment of Operator’s seat lower slide rail
Cable harness for air conditioning system
CareTrack Telematics system
CareTrack, new software version 2008w6
CD & MP3 player
Check method on engine oil consumption
Circuit changes of the auxiliary diesel heater
Clamping method improvement of the grease pipes on the dipper arms
Coolant level sensor 1
Coolant level sensor
Coolant pump improvement 1
Coolant pump improvement
Cooling fan adapter broken
Crankshaft and camshaft gear manufacturing improvements
D4 – D7 Alternator improvement
D4,D6,D7 Fan pulley bearing kit
D4D Fuel hose improvement
D4D Unit injection pump spring
Dark colored fuel
DC-DC converter
Diesel fuels – quality and function
Dipstick level gauge improvement for swing gearbox
ECU, functional check
E–ECU, Control unit engine
Electric connector
Electric horn improvement
Electric horn replacement
Electric horn
Electrical load capacity
EMR2 ECU failure
Engine limp home switch wire harness
Fan pulley bearing bracket improvement
Fan pulley bearing improvement
Fan pulley bearing improvement1
Fuel cap improvement
Fuel filler pump service kit
Fuel filler pump
Fuel filter and water separator replacement interval change
Fuel level sender
Fuel Level
Fuel pump improvement
Fuel sampling, method
Fuel tank air breather kit
Fuel tank drain valve
Gas spring
Genuine coolant use
Grading kit EC140B
Grease nipple commonality
Guidelines of the maximum permissible weight of application tools and load
Handrail improvement
Heat treatment process improvement of the track shoe
Heat-resistant kit for RCV leakage
Hour counter improvement
Hydraulic couplings, description
Hydraulic hose assembly leakage handling
Hydraulic pipes improvement
Hydraulic pressure, measuring and adjusting
Hydraulic system flushing method
Hydraulic tank air breather 1
Hydraulic tank air breather
Idler improvement
Idler wheel and bushing improvement 1
Idler wheel and bushing improvement
I-ECU display
Improved dipper arm cylinder lock nut
Improved dipper arm cylinder lock nutq
Improved Fuel Level Sender
Improved heater core
Improved preheating relay
Improved Volvo quick-fit block
Improvement of Main pump hose assembly
Improvement of return check valve
Injector yoke retention bolt loose
Instrument control unit I-ECU, error symptom
Instrument panel improvement
Instrument panel improvement1
Internal leakage
KOR service bulletin number change
Leakage at engine oil pump gasket
Line rupture valve hose, improvement
Lubrication point change on swing bearing
Machine model
Main pump noise and damage
Main pump shaft seal leakage
MCV arm holding valve block
MCV pipe improvement
Modification of CareTrack wire harness
MS.Internal.Documents
New air conditioning control switch
New air conditioning switch
New cassette radio
New clamp
New Compact Alternator
New Compact Alternator2
New coolant
New drain pipe in the swing drive unit
New fuel filling hoses
New fuel suction cover
New horn
New I-ECU introduction
New I-ECU
New label on the fuel sender
New oil change interval for Volvo bio hydraulic oil
New product 1
New product 2
New product
New Radio Antenna
New slew ring gear seal 1
New slew ring gear seal
New starter motor
New TechTool VCADS Pro interface
New track chain
New track guard
New track master pin
New Track roller_lower
New track roller_upper 1
New track roller_upper
Oil analyses
Oil sampling, method
Oil sampling, sampling points
Operating hour parameter
Plastic shims for Boom Arm pin joints
Poor grading with RCV
Port relief valve improvement
Portable refillable O-ring kits
Pump seal improvement
Quick coupler for pressure test port leakage
QUICK FIT CHANGES
QUICK FIT CYLINDER CHANGES
Quickfit system, operation
Radiator improvement information
Rain visor
Receiver drier improvement
Receiver drier pressure switch
Recoil spring grease valve
Recoil spring improvement
Recoil spring package rod
Recommendations for Oil Sampling Intervals
Repair Instruction for Auto Deceleration Function
Reporting of product misuse & near-miss report
Reports
Rerouting of the Make-up hose
Right-hand console box
Rotating beacon lamp, tightening torque
Sight gauge of fuel tank
Socket
Solenoid valve for rotator
Solenoid valve improvement
Special wire harness for elevated cabin
Sprocket improvement 1
Sprocket improvement
Swing motor, improvement
Swing ring gear seal 2
Swing ring gear seal improvement
Swing ring gear seal
Swing stop on a slope improvement
The checking method of cooling system
Thermostat failure (D4, D5, D6 & D7)
Tool box change
Tool box improvement
Track link repair kit
Track link seizing
Travel gear box hub improvement
Travel motor
Turbocharger checking instruction
V-ECU Hardware
V-ECU Programming
Volvo Product incident accident report & Interview Form
Washer check valve
Water in fuel
Water in the swing bath due to manufacturing defect
Water separator improvement 1
Water separator improvement 12
Water separator improvement
Water separator
Windshield wiper wiping range increase
Wire harness protection cover
X1 Line, hydraulic circuits
X1 stop valve 1
X1 stop valve
Special Tools, Misc
GRD G700B LabourTimeGuide
Recommended Special Tools
RM Compaction ABG Time Guide
RM Compaction Time guide
RM Paving Systems ABG Time Guide
Time Guide Current generation
Time Guide Old generation
Time Guide Previous generation
Specifications
2-pump flow selector valve
Adjustable boom and cylinder, specifications
Adjustable boom and cylinder, specifications1
Air conditioning unit, specifications
Alternator, specifications (new)
Alternator, specifications (new)1
Alternator, specifications
Alternator, specifications1
Auto manual select switch, specifications
Auto manual select switch, specifications1
Battery disconnect switch, specifications
Battery relay, specifications
Battery, specifications
Battery, specifications1
Boom lifting cylinder, specifications
Boom lifting cylinder, specifications1
Boom, specifications1
Boom, specifications2
Bucket cylinder, specifications
Bucket cylinder, specifications1
Cab, specifications
Control lockout lever switch, specifications
Control lockout lever switch, specifications1
Coolant level sensor, specifications
Cooling fan, specifications
Cooling fan, specifications1
Cooling system, specifications1
Cooling system, specifications2
Counterweight, specifications
Counterweight, tightening torques
Current pressure, specifications
Current pressure, specifications1
DC–DC converter, specifications
Diesel coolant heater (5kw), specifications
Diesel coolant heater (5kw), specifications1
Diesel coolant heater (10kw), specifications
Dipper arm cylinder, specifications
Dipper arm cylinder, specifications1
Dipper arm, specifications1
Dipper arm, specifications2
Driver’s seat, specifications
Electric horn, specifications
Electrical system, specifications
Electrical system, specifications1
Emergency engine speed control switch, specifications
Engine – Pump control, specification1
Engine – Pump control, specification2
Engine – Pump control, specification3
Engine control unit E-ECU, specifications1
Engine control unit E-ECU, specifications2
Engine oil pressure sensor, specifications
Engine oil pressure sensor, specifications1
Engine speed control switch, specifications1
Engine speed control switch, specifications2
Engine, specifications1
Engine, specifications2
Engine, specifications3
Engine, specifications4
Engine, specifications5
Engine, specifications6
Engine, weights
Engine, weights1
Frame and track unit, specifications
Fuel Coolant temperature sensor, specifications
Fuel feed pump, specifications1
Fuel feed pump, specifications2
Fuel filler pump, specifications
Fuel level sensor, specifications
Fuel level sensor, specifications1
Fuel pressure, specifications2
Fuel pressure, specifications3
Fuel system, specifications1
Fuel system, specifications2
Fuel system, tightening torques
Fuel system, tightening torques1
Fuel system, tightening torques2
Fuel tank, specifications
Fuel tank, specifications1
Fuse, specifications1
Fuse, specifications2
GPS control unit GPS-ECU, specifications
Hammer return filter, specifications
Hammer return filter, specifications1
Hydraulic oil cooling system, specifications
Hydraulic oil cooling system, specifications1
Hydraulic pump, specifications
Hydraulic tank, specifications
Hydraulic tank, specifications1
Instrument control unit I-ECU, specifications
Instrument control unit I-ECU, specifications1
Keypad, specification
Line rupture valve (arm), specifications
Line rupture valve (arm), specifications1
Line rupture valve (boom), specifications
Lower wiper motor, specifications
Lubrication system, specifications
Lubrication system, specifications1
Main control valve, specifications1
Main control valve, specifications2
Measurement conversion tables
Preheating, specifications
Pressure accumulator, specifications
Pressure accumulator, specifications1
Proportional solenoid valve, specifications
Proportional solenoid valve, specifications1
Radio with CD and MP3 player, specifications
Radio with CD and MP3 player, specifications1
Radio with tape player, specifications (new type)
Radio with tape player, specifications
Regulator, specifications
Regulator, specifications1
Relay box, specifications1
Relay box, specifications2
Relay box, specifications3
Remote control valve (Lever), specifications
Remote control valve (Lever), specifications1
Remote control valve (pedal), specifications
Remote control valve (pedal), specifications1
Resistance box, specifications
Rotating beacon, specifications
Rotator pump, specifications
Safety start relay, specifications
Servo hydraulic selector valve, specifications
Servo hydraulic selector valve, specifications1
Servo pump, specifications
Slew gearbox, specifications
Slow blow fuse, specifications
Slow blow fuse, specifications1
Solenoid valve for rotator1
Solenoid valve for rotator2
Solenoid valve, specifications
Solenoid valve, specifications1
Standard tightening torques
Start switch, specifications
Starter motor, specifications
Starter motor, specifications1
Swing motor, specifications1
Swing motor, specifications2
Swing motor, specifications3
Swing ring gear, specifications
Tightening torque, specifications
Tightening torque, specifications1
Tightening torque, specifications2
Track gearbox, specifications
Track motor, specifications1
Track motor, specifications2
Travel alarm, specifications
Upper wiper motor, specifications
Valve system specifications
Valve system specifications1
Vehicle control unit V-ECU, specifications (I-ECU equipped)
Vehicle control unit V-ECU, specifications
Vehicle control unit V-ECU, specifications1
Vehicle control unit V-ECU, specifications2
Waste handler, specification
Work lights and extra lights, specifications











