Expert Support
Full Speed
100% Working
Yale Forklift B814 (ERC16-20AAF, ERP16-20AAF) Service Manual
30 USD
- Description
Description
List of Files:
DRIVETRAIN
0100YRM0617 FRAME 03-2006
0620YRM0294 DC MOTOR MAINTENANCE 09-2016
0620YRM1098 AC MOTOR REPAIR 03-2010
1400YRM0618 DRIVE AXLE, SPEED REDUCER, AND DIFFERENTIAL 03-2006
1600YRM0619 STEERING AXLE 03-2006
1600YRM0720 STEERING HOUSING AND CONTROL UNIT 11-2006
1600YRM1054 STEERING SYSTEM 11-2006
1800YRM0620 BRAKE SYSTEM 03-2008
HYDRAULICS
1900YRM0559 HYDRAULIC SYSTEM 04-2009
2000YRM0562 MAIN CONTROL VALVE 02-2009
2100YRM0103 TILT CYLINDERS 03-2007
2100YRM1139 CYLINDER REPAIR (MAST S/N A551, A555, A559, A661, A662, A663, A66, B507, B508, B509, B551, B555, B559, B562, B563, B564, B661, B662, B663, C515, C551, C555, C559, D507, D508, D509, D515, D562, D563, D564, E509, AND E564) 02-2014
4000YRM0521 MAST – DESCRIPTION 03-2006
4000YRM0522 MAST – REPAIR 07-2010
4000YRM1148 MAST REPAIRS (S/N A551, A555, A559, A661, A662, A663, A664, B507, B508, B509, B551, B555, B559, B562, B563, B564, B661, B662, B663, C515, C551, C555, C559, D507, D508, D509, D515, D562, D563, D564, E509, AND E564) 09-2015
ELECTRICAL
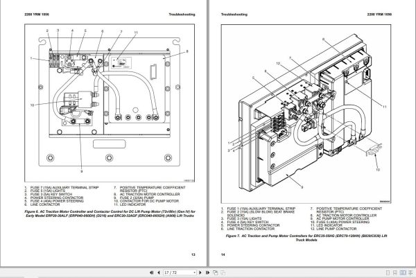
2200YRM1055 ELECTRICAL SYSTEM 10-2009
2200YRM1056 AC MOTOR CONTROLLERS/DISPLAY PANEL 03-2009
2200YRM1058 TROUBLESHOOTING AND ADJUSTMENTS USING THE AC CONTROLS PROGRAM 04-2011
2240YRM0001 INDUSTRIAL BATTERY 01-2023
REFERENCE MATERIAL
8000YRM0231 METRIC AND INCH (SAE) FASTENERS 02-2023
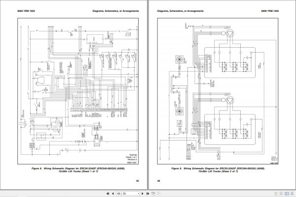
8000YRM1059 DIAGRAMS 08-2012
8000YRM1060 PERIODIC MAINTENANCE 02-2010
8000YRM1113 CAPACITIES AND SPECIFICATIONS 02-2009

















