Expert Support
Full Speed
100% Working
ZF Transmission ERGOPOWER 3 WG-94 EC Maintenance and Repair Manual DE
20 USD
- Description
Description
Contents:
I. BESCHREIBUNG 11
1.1 Wirkungsweise des Wandlers
1.2 Lastschaltgetriebe
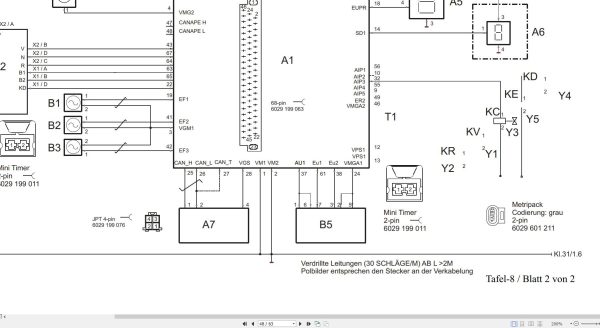
1.3 Getriebesteuerung
1.4 Fahrschalter DW3
1.5 Elektronisches Steuergerät
1.6 Elektronische Steuerung für das ZF-Lastschaltgetriebe
1.6.1 Allgemein
1.6.2 Beschreibung der Grundfunktionen
1.6.3 AEB
1.6.4 Elektrisches Inchen
1.7 Fehlercodebeschreibung für ERGO-Steuerung EST-65
1.7.1 Abkürzungen
1.7.2 ZF-Display
1.7.3 Mögliche Anzeigen am Display während des Betriebes
1.7.4 Mögliche Anzeigen am Display während des AEB-Modus
1.7.5 Mögliche Anzeigen am Display während Inchpedalkalibrierung
1.7.6 Definition verschiedener Betriebsarten
II. EINBAUHINWEISE 21
III. BEDIENUNG 23
3.1 Fahrvorbereitung und Wartung
3.2 Fahren und Schalten
3.3 Kaltstart
3.4 Getriebesteuerung im Fahrbereich Automatik
3.5 Abstellen und Parken
3.6 Abschleppen
3.7 Öltemperatur
IV. WARTUNG 27
4.1 Ölsorte
4.2 Ölstandskontrolle
4.3 Öl- und Filterwechselintervalle
4.3.1 Ölwechsel und Öleinfüllmenge
4.3.2 Filterwechsel
V. DIAGNOSESYSTEME 31
5.1 Allgemein
5.1 Laptop Version
5.2 Multi-System 5060















